CAD频道
CAD图库
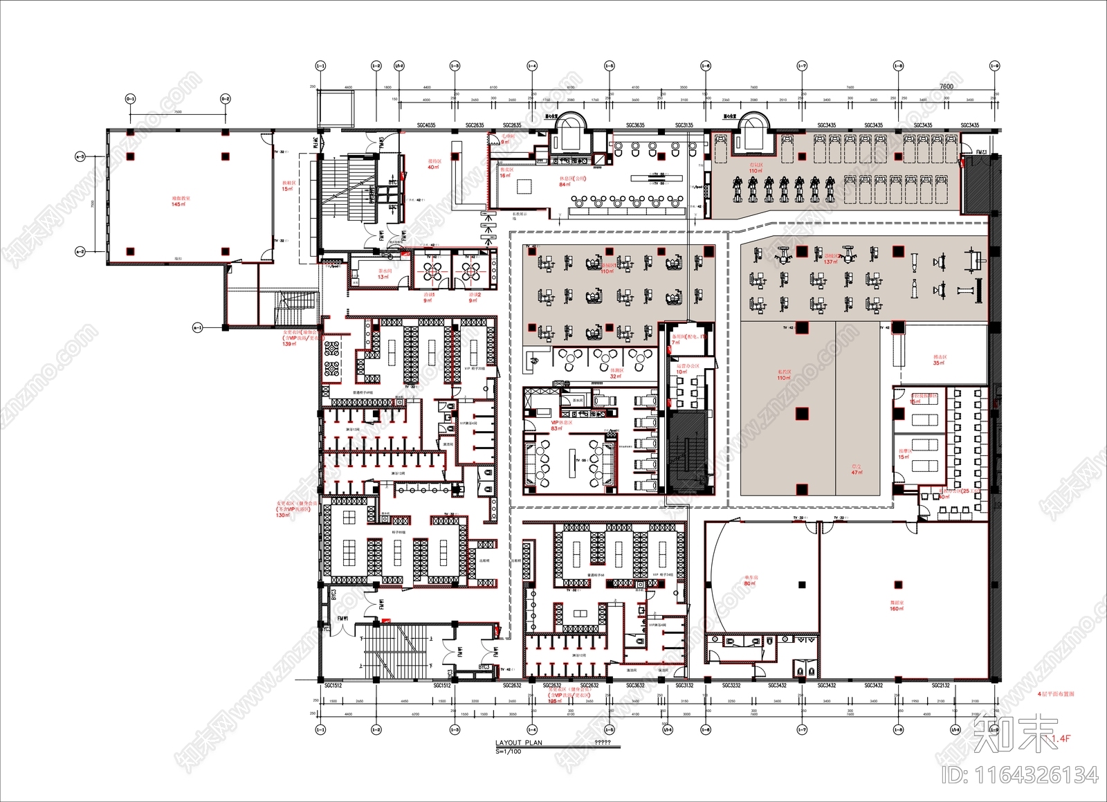
现代健身房 河南 游泳健身会所 平面 施工图
1/
2
Previous
Next
现代健身房CAD下载
ID: 1164326134
复制
上传作者
HZZZ
上传时间
2024-06-21
文件大小
33.18M
设计风格:
--
CAD版本:
CAD2012
包含文件:
CAD
授权
独家
立即下载
收藏
分享
举报
相关推荐
综合
休闲娱乐空间
健身房
会所
美容院
理发店
电影院
茶馆
KTV
酒吧
网吧