CAD频道
CAD图库
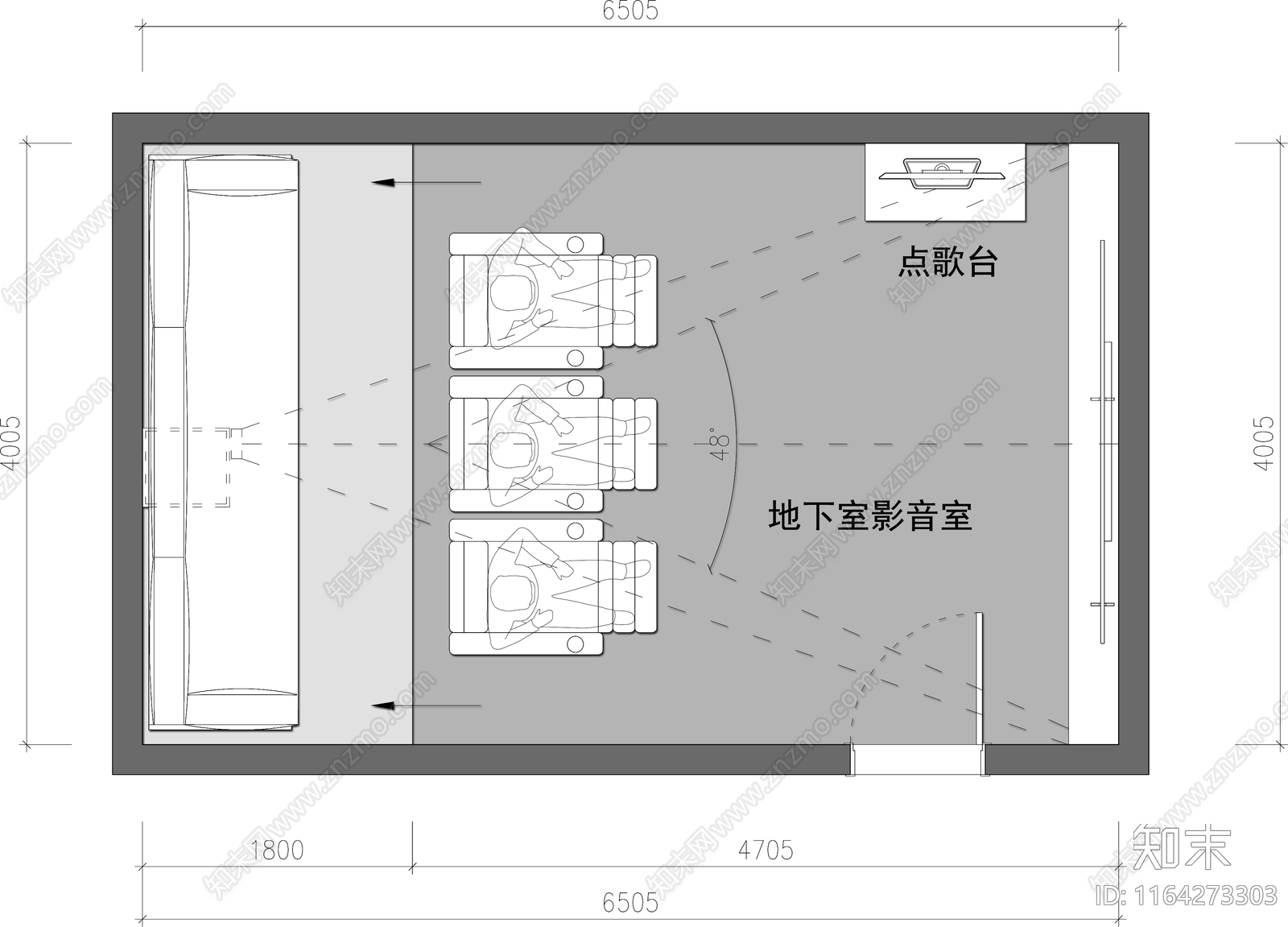
现代影音室 地下室影音室 施工图
1/
2
Previous
Next
现代影音室CAD下载
ID: 1164273303
复制
上传作者
洪瑞图库
上传时间
2024-06-21
文件大小
0.13M
设计风格:
--
CAD版本:
CAD2004
包含文件:
CAD
授权
独家
立即下载
收藏
分享
举报
相关推荐
综合
家装局部空间
影音室
客厅
餐厅
厨房
卫生间
卧室
书房
衣帽间
客餐厅