CAD频道
CAD图库
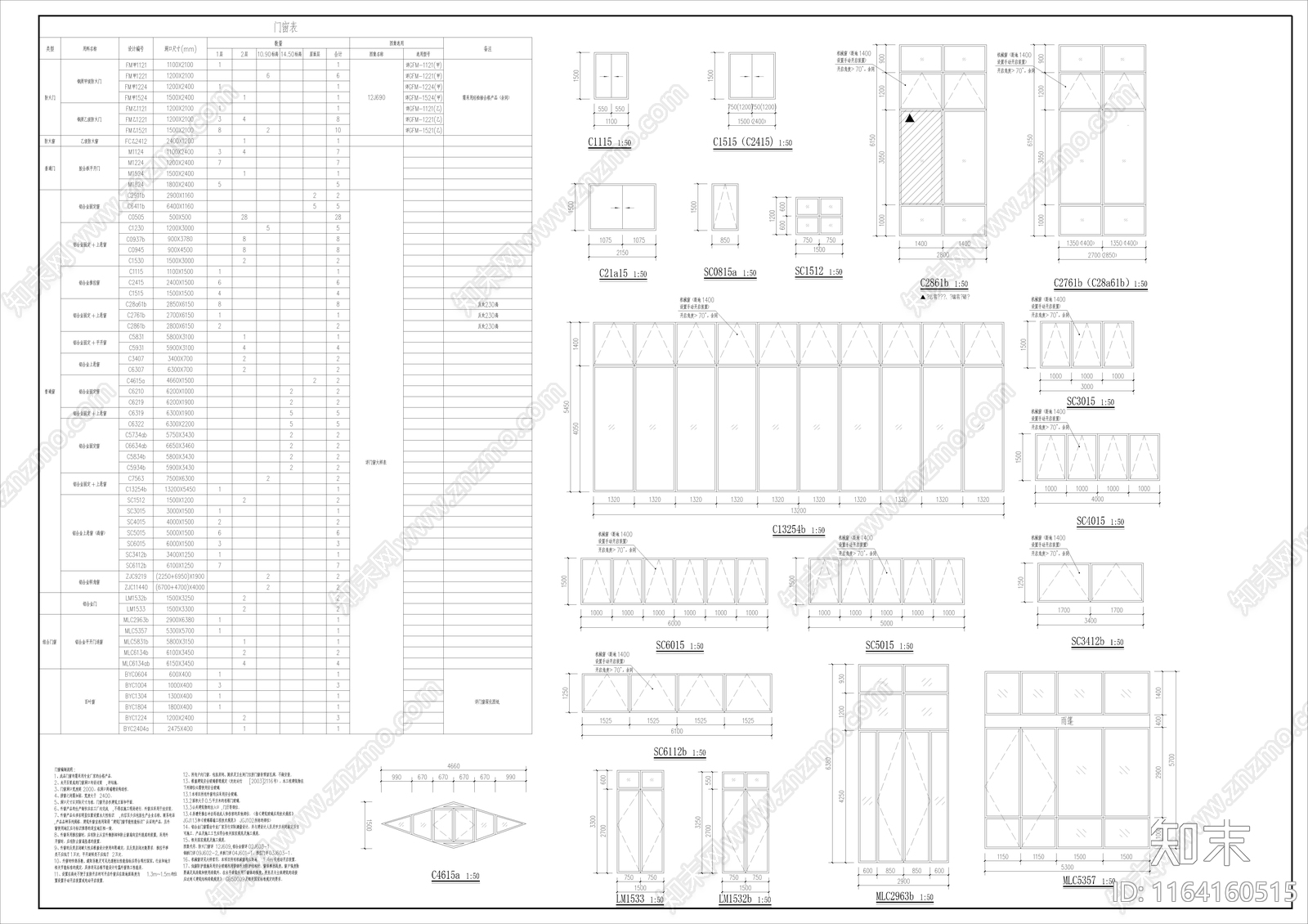
现代其他公共建筑 大样 体育馆 节点图 施工图
1/
4
Previous
Next
现代其他公共建筑CAD下载
ID: 1164160515
复制
上传作者
刀客刀客
上传时间
2024-06-20
文件大小
2.14M
设计风格:
--
CAD版本:
--
包含文件:
CAD
授权
独家
立即下载
收藏
分享
举报
相关推荐
综合
公共建筑
其他公共建筑
会议中心建筑
公厕
行政机构建筑
医院建筑
门卫室建筑
停车楼
消防站
集装箱