CAD频道
CAD图库
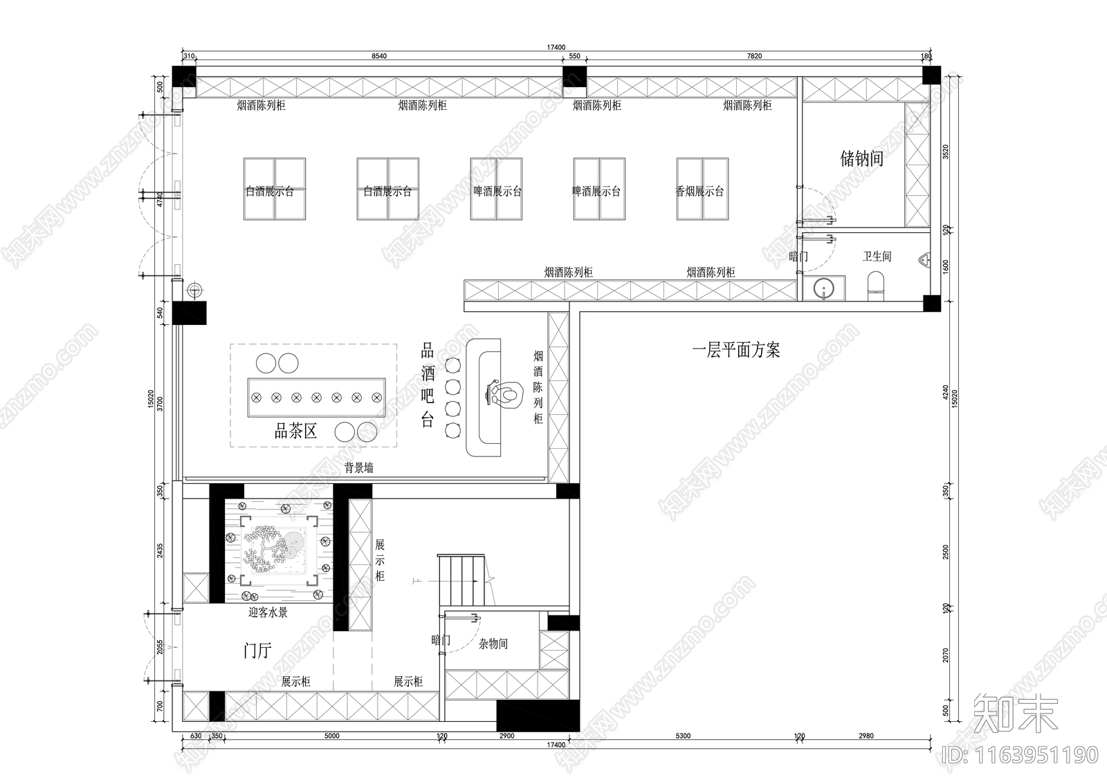
现代烟酒店 烟酒办公接待 烟 施工图 烟酒店
1/
3
Previous
Next
现代烟酒店CAD下载
ID: 1163951190
复制
上传作者
EXPLORER
上传时间
2024-06-18
文件大小
0.54M
设计风格:
--
CAD版本:
CAD2016
包含文件:
CAD
授权
独家
立即下载
收藏
分享
举报
相关推荐
综合
商业空间
烟酒店
售楼处
商场
其他商业空间
超市
服装店
书店
美甲店
珠宝店