CAD频道
CAD图库
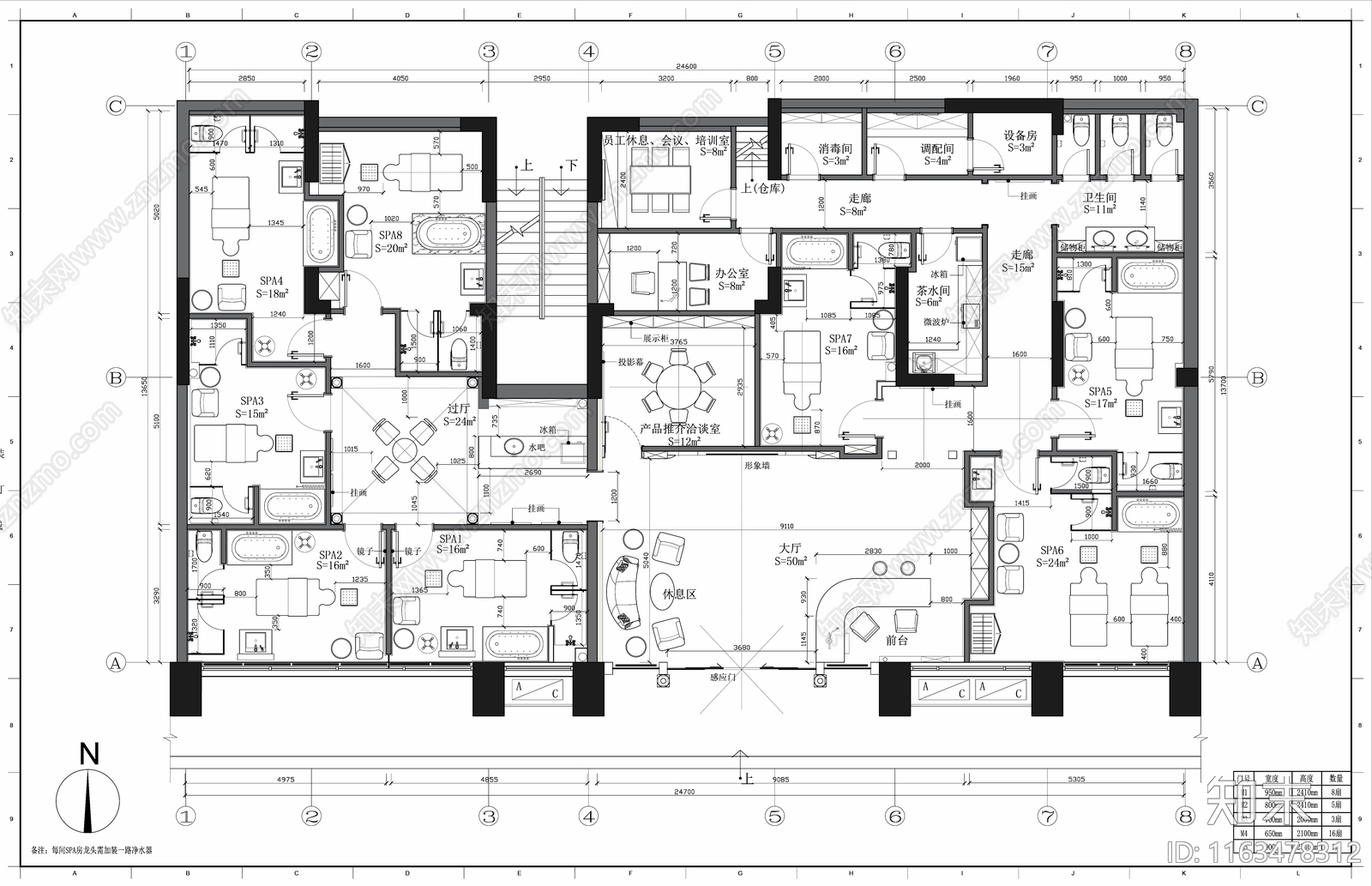
现代其他工装空间 美容院平面设计图 SPA 会所 美容院图块 SPA会所...
现代其他工装空间CAD下载
ID: 1163478312
复制
上传作者
MUYI
上传时间
2024-06-16
文件大小
2.73M
设计风格:
--
CAD版本:
CAD2004
包含文件:
CAD
授权
独家
立即下载
收藏
分享
举报
相关推荐
综合
工装
其他工装空间
办公空间
教育空间
文化空间
民宿
商业空间
餐饮空间
休闲娱乐空间
展厅