CAD频道
CAD图库
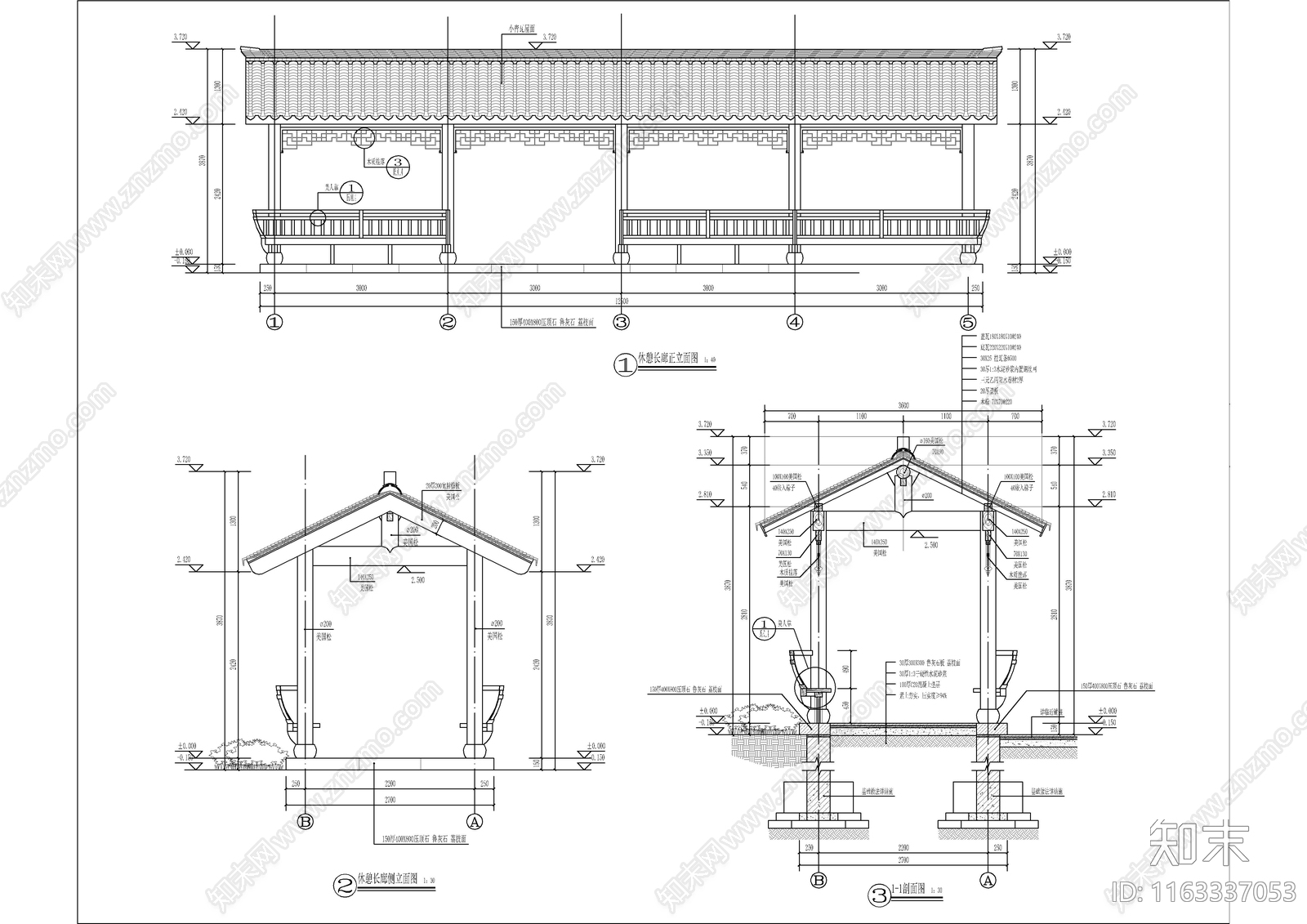
中式新中式廊架节点 休憩长廊做法详图 施工图
1/
4
Previous
Next
中式新中式廊架节点CAD下载
ID: 1163337053
复制
上传作者
承诺不熬椰
上传时间
2024-06-15
文件大小
0.59M
设计风格:
--
CAD版本:
CAD2004
包含文件:
CAD
授权
独家
立即下载
收藏
分享
举报
相关推荐
综合
景观小品
廊架
亭子
景墙
综合景观小品
雨棚
围墙
挡土墙
入口
景观坐凳