CAD频道
CAD图库
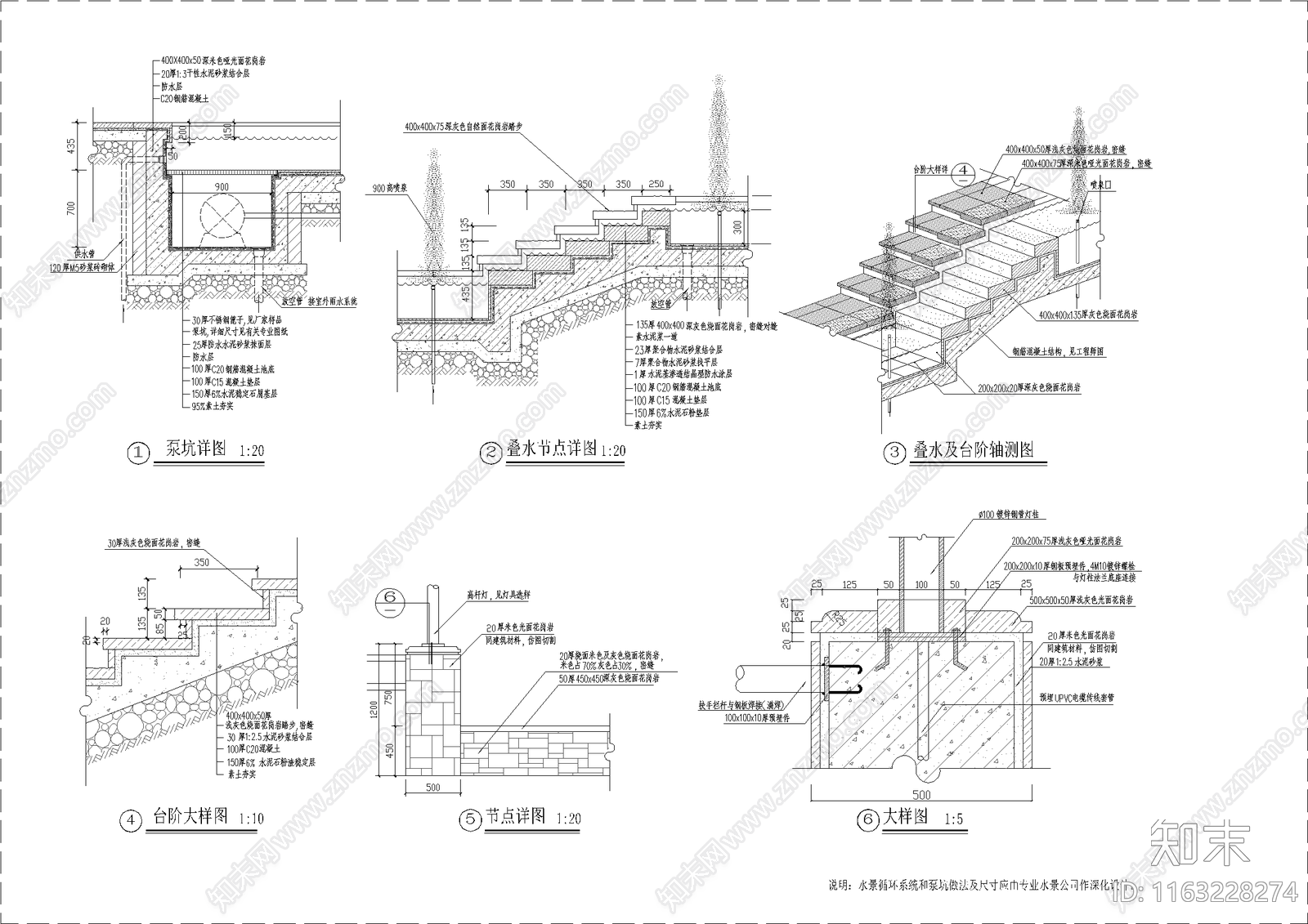
欧式入口节点 中轴 形象 台阶做法 节点平面 施工图
1/
10
Previous
Next
欧式入口节点CAD下载
ID: 1163228274
复制
上传作者
罢手54
上传时间
2024-06-14
文件大小
8.15M
设计风格:
--
CAD版本:
天正CAD7.0
包含文件:
CAD
授权
独家
立即下载
收藏
分享
举报
相关推荐
综合
景观小品
入口
亭子
廊架
景墙
综合景观小品
雨棚
围墙
挡土墙
景观坐凳