CAD频道
CAD图库
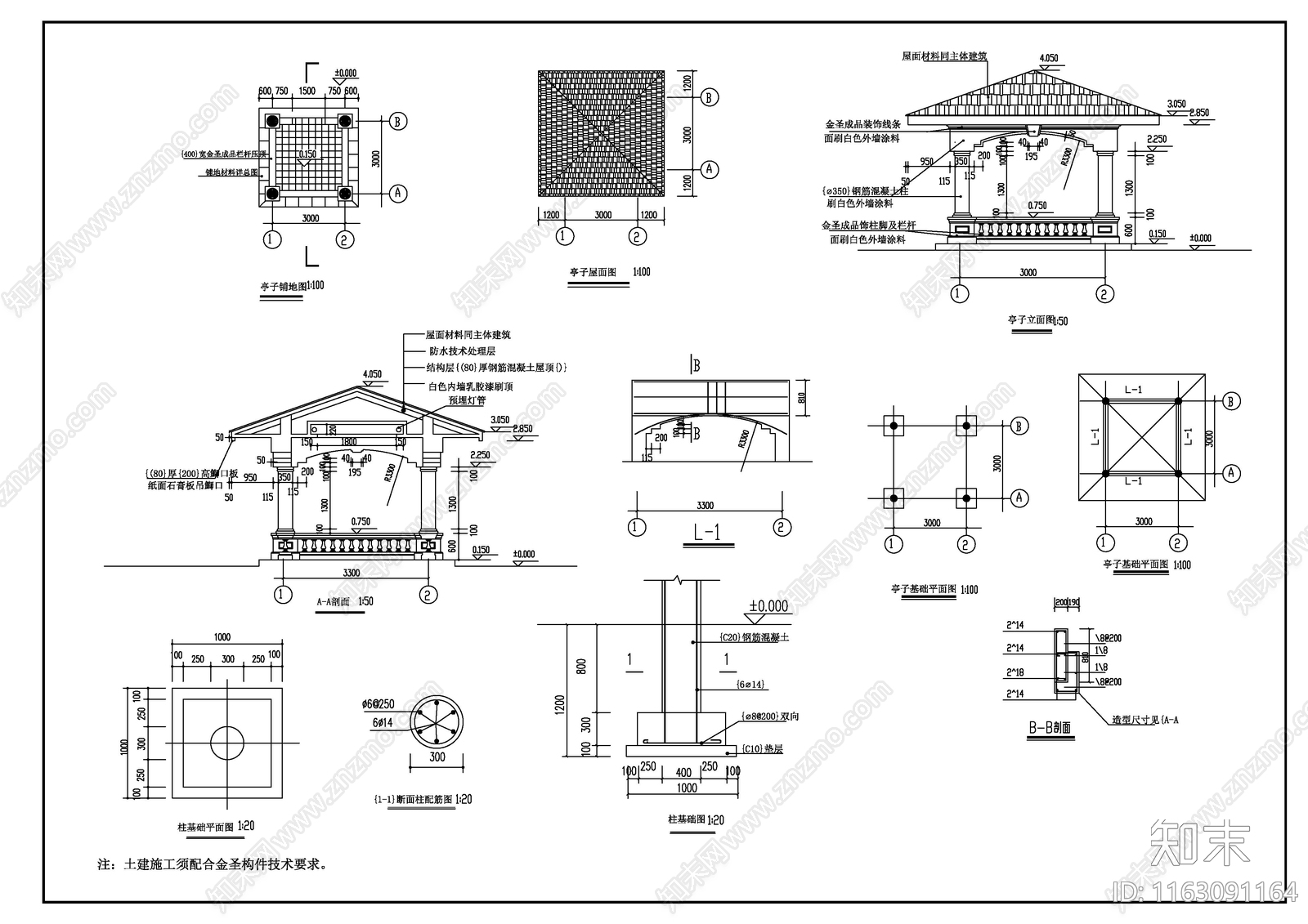
新中式现代亭子节点 凉亭 茅草亭 四角亭 凉亭建筑图 施工图
新中式现代亭子节点CAD下载
ID: 1163091164
复制
上传作者
小小尘壑
上传时间
2024-06-13
文件大小
0.09M
设计风格:
--
CAD版本:
CAD2004
包含文件:
CAD
授权
独家
立即下载
收藏
分享
举报
相关推荐
综合
景观小品
亭子
廊架
景墙
综合景观小品
雨棚
围墙
挡土墙
入口
景观坐凳