CAD频道
CAD图库
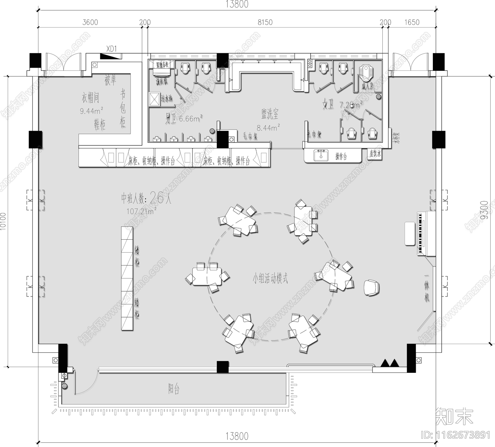
现代教室 幼儿园办公室 施工图
1/
2
Previous
Next
现代教室CAD下载
ID: 1162673891
复制
上传作者
精品创图
上传时间
2024-06-07
文件大小
0.15M
设计风格:
--
CAD版本:
CAD2004
包含文件:
CAD
授权
独家
立即下载
收藏
分享
举报
相关推荐
综合
教育空间
教室
幼儿园
学校
培训中心
其他教育空间
实验室
画室
舞蹈室