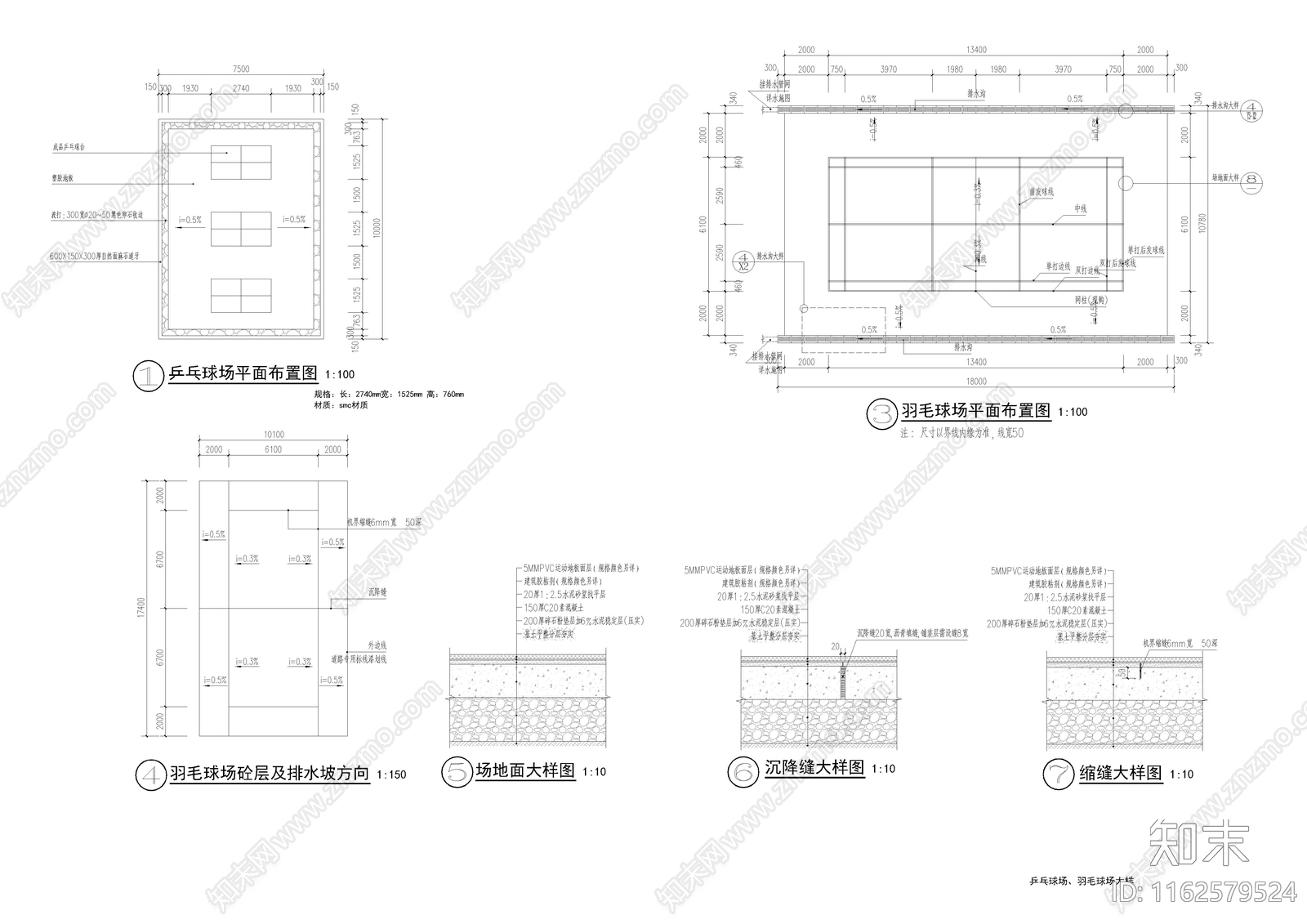
乒乓球场施工图下载【ID:1162579524】

乒乓球场CAD下载

ID: 1162579524
复制
上传作者
不良人(粉必回)不良人(粉必回)

上传时间2024-06-06

文件大小0.07M

设计风格:--

CAD版本:CAD2004

包含文件:CAD

授权独家

立即下载
收藏
分享
举报
相关推荐
综合
运动场
羽毛球场
网球场
篮球场
其他运动场地
操场
足球场
看台
高尔夫