CAD频道
CAD图库
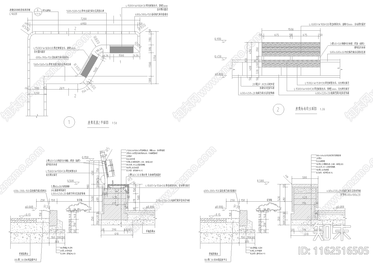
花基座凳做法 施工图
1/
2
Previous
Next
花基座凳做法CAD下载
ID: 1162516505
复制
上传作者
7684529
上传时间
2024-06-06
文件大小
0.56M
设计风格:
--
CAD版本:
CAD2018
包含文件:
CAD
授权
独家
立即下载
收藏
分享
举报
相关推荐
综合
景观小品
景观坐凳
亭子
廊架
景墙
综合景观小品
雨棚
围墙
挡土墙
入口