CAD频道
CAD图库
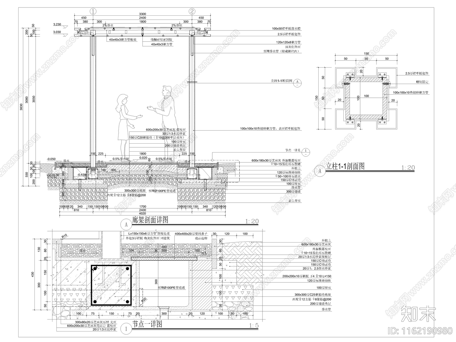
连廊详图 平面立面剖面图 施工图
1/
3
Previous
Next
连廊详图CAD下载
ID: 1162190980
复制
上传作者
小小景观(互粉)
上传时间
2024-06-03
文件大小
0.46M
设计风格:
--
CAD版本:
天正CAD5.0
包含文件:
CAD
授权
普通
立即下载
收藏
分享
举报
相关推荐
综合
景观小品
廊架
亭子
景墙
综合景观小品
雨棚
围墙
挡土墙
入口
景观坐凳