CAD频道
CAD图库
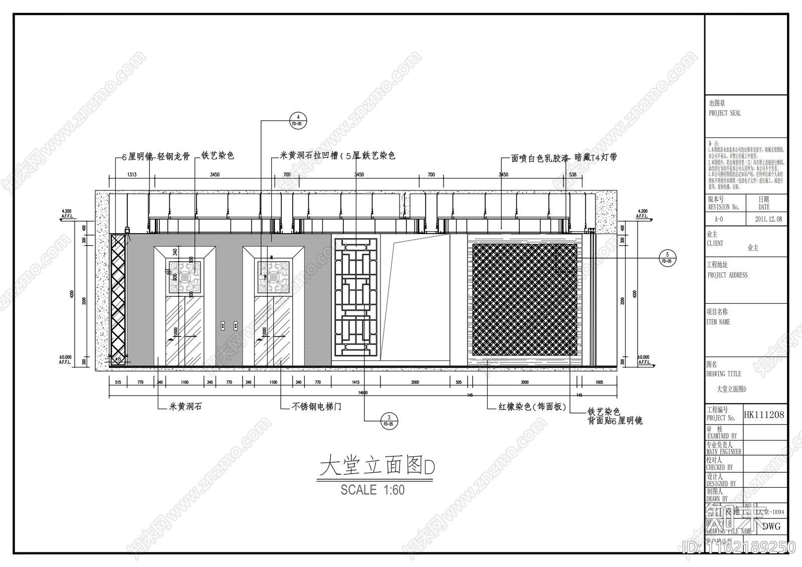
优雅新中式酒店大堂立面图 施工图
1/
4
Previous
Next
优雅新中式酒店大堂立面图CAD下载
ID: 1162189250
复制
上传作者
常威打来福
上传时间
2024-06-03
文件大小
0.83M
设计风格:
--
CAD版本:
天正CAD6.0
包含文件:
CAD
授权
独家
立即下载
收藏
分享
举报
相关推荐
综合
立面图/剖面图
工装立面图
家装立面图
建筑立面图
景观立面图
立面图
剖面图