CAD频道
CAD图库
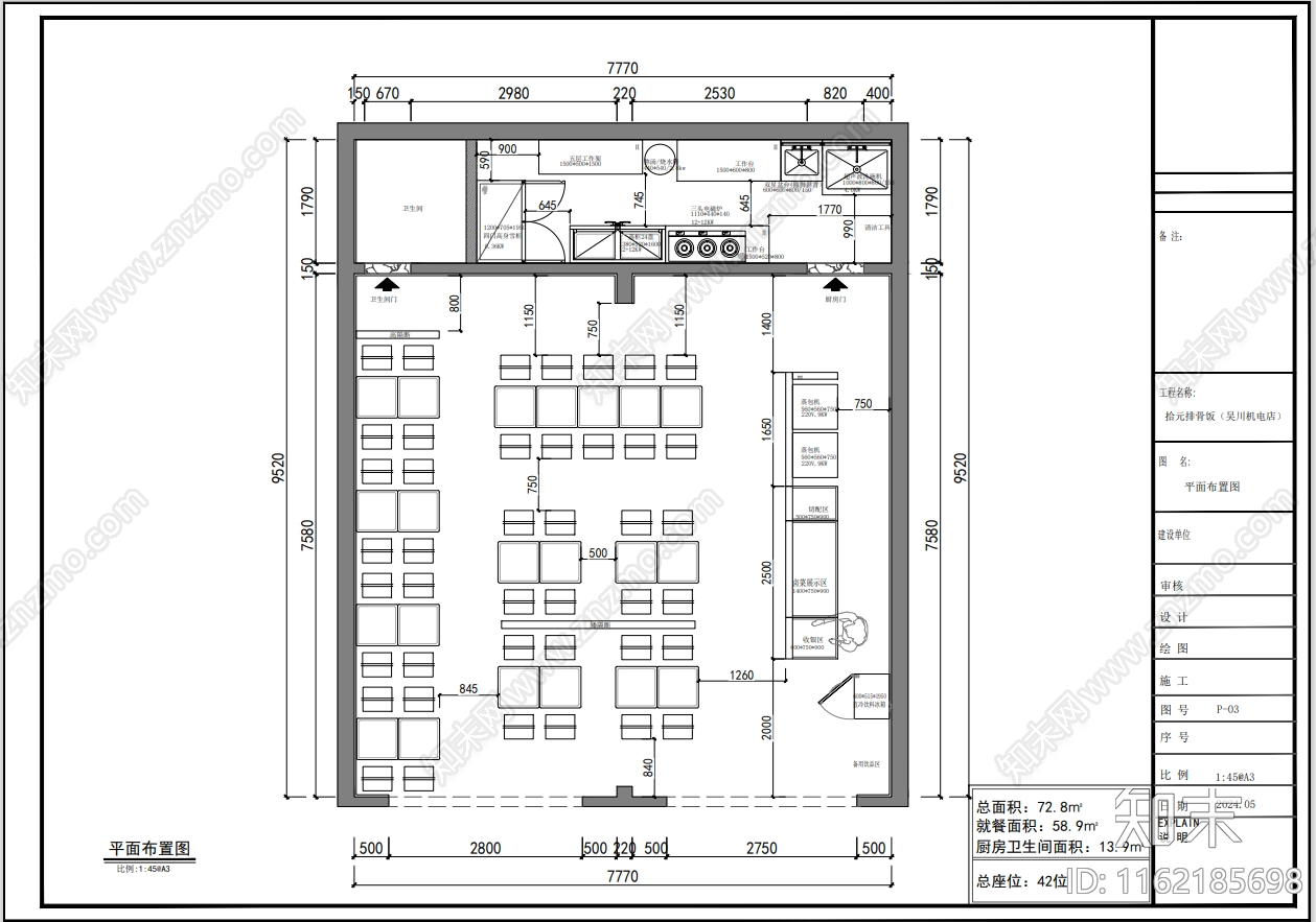
宵夜包子米饭店面 施工图
1/
7
Previous
Next
宵夜包子米饭店面CAD下载
ID: 1162185698
复制
上传作者
愣头青铁头娃
上传时间
2024-06-03
文件大小
4.04M
设计风格:
--
CAD版本:
CAD2007
包含文件:
CAD
授权
独家
立即下载
收藏
分享
举报
相关推荐
综合
餐饮空间
烧烤店
中餐厅
西餐厅
快餐店
自助餐厅
茶餐厅
其他餐饮空间
食堂
奶茶店