1/8


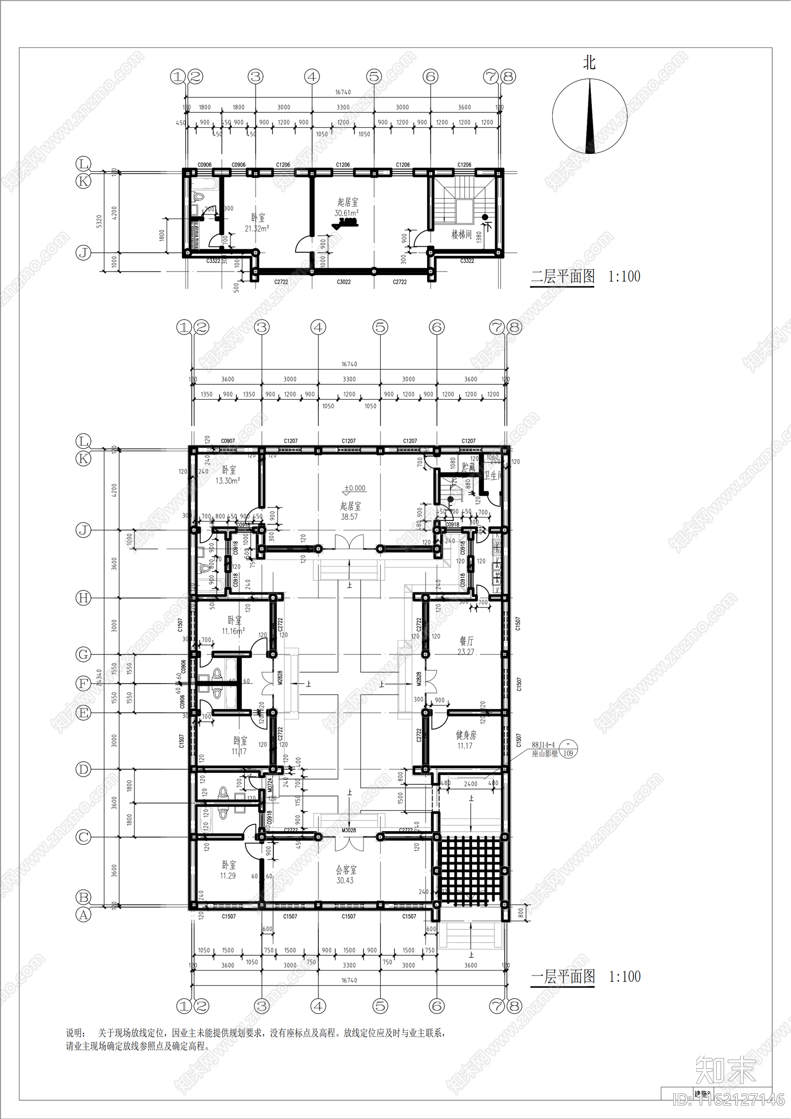
二层北京传统四合院设计CAD下载
ID: 1162127146
复制
上传作者
QinGuan
QinGuan上传时间2024-06-02
文件大小7.03M
设计风格:--
CAD版本:CAD2018
包含文件:CAD
授权独家
立即下载
收藏
分享
举报
相关推荐
综合
居住建筑
四合院
住宅楼建筑
别墅建筑
其他居住建筑
高层住宅
多层住宅
低层住宅
公寓建筑
联排住宅


QinGuan上传时间2024-06-02
文件大小7.03M
设计风格:--
CAD版本:CAD2018
包含文件:CAD
授权独家