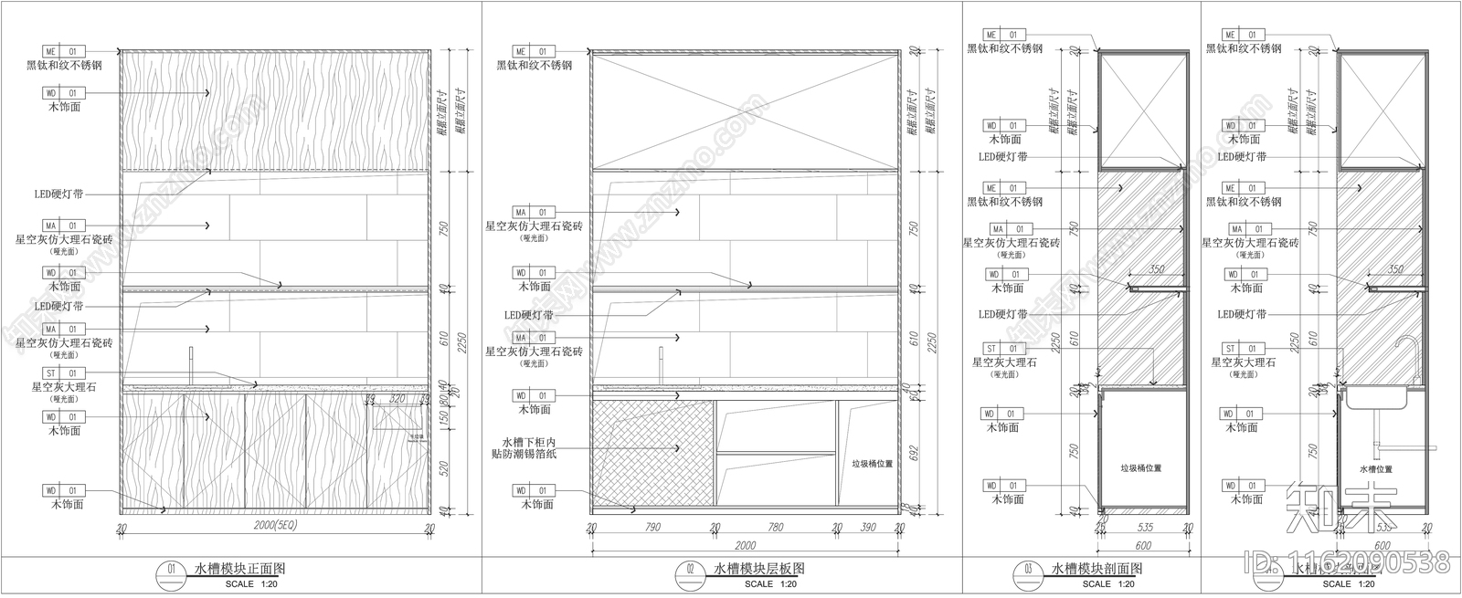
茶水柜节点大样图施工图下载【ID:1162090538】

茶水柜节点大样图CAD下载

ID: 1162090538
复制
上传作者
精品创图精品创图

上传时间2024-06-02

文件大小0.34M

设计风格:--

CAD版本:CAD2004

包含文件:CAD

授权独家

立即下载
收藏
分享
举报
相关推荐
综合
室内工艺节点
其他室内工艺节点