CAD频道
CAD图库
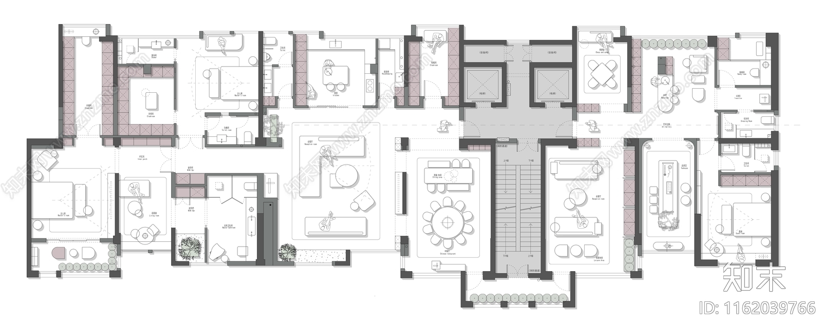
iGo 520㎡大平层4户打通平面案例源文件 施工图 平层
1/
4
Previous
Next
iGoCAD下载
ID: 1162039766
复制
上传作者
iGo户型优化
上传时间
2024-06-01
文件大小
42.35M
设计风格:
--
CAD版本:
CAD2007
包含文件:
CAD
授权
独家
立即下载
收藏
分享
举报
相关推荐
综合
平层
大平层
小户型平层
超大型平层