1/4


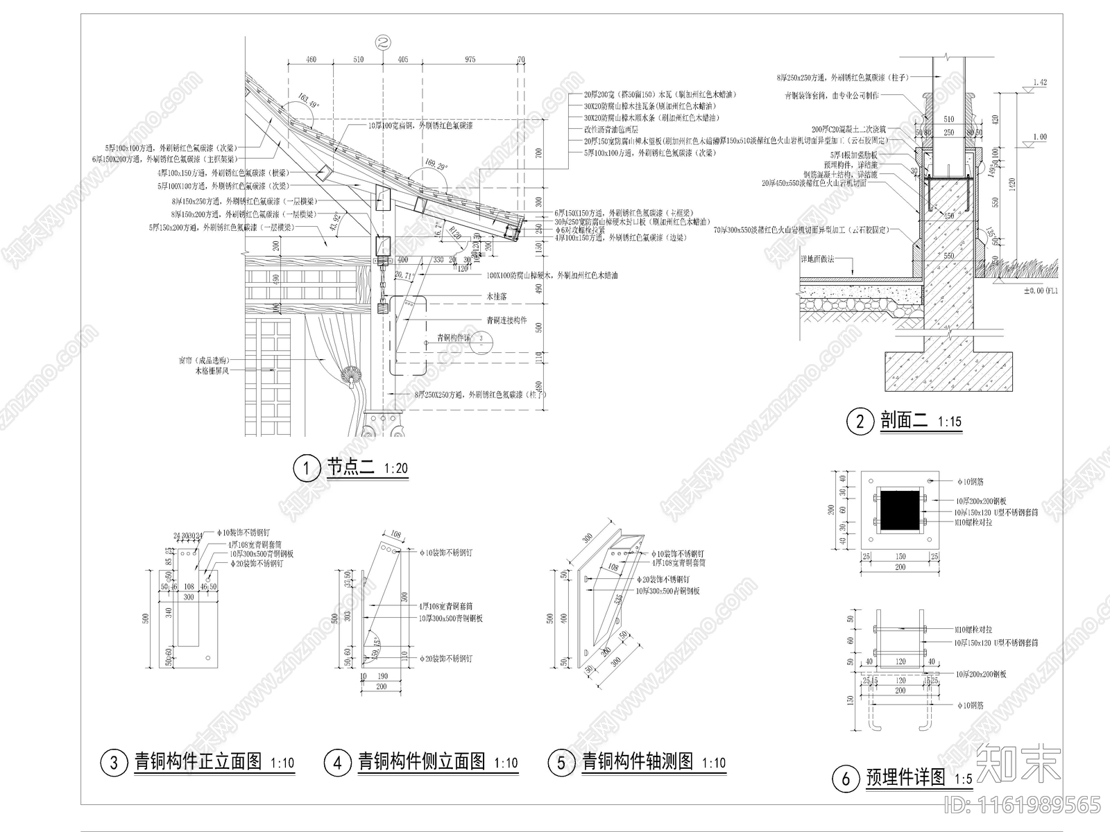
特色景亭详图CAD下载
ID: 1161989565
复制
上传作者
小小景观(互粉)
小小景观(互粉)上传时间2024-05-31
文件大小0.93M
设计风格:--
CAD版本:天正CAD5.0
包含文件:CAD
授权普通
立即下载
收藏
分享
举报
相关推荐
综合
景观小品
亭子
廊架
景墙
综合景观小品
雨棚
围墙
挡土墙
入口
景观坐凳


小小景观(互粉)上传时间2024-05-31
文件大小0.93M
设计风格:--
CAD版本:天正CAD5.0
包含文件:CAD
授权普通