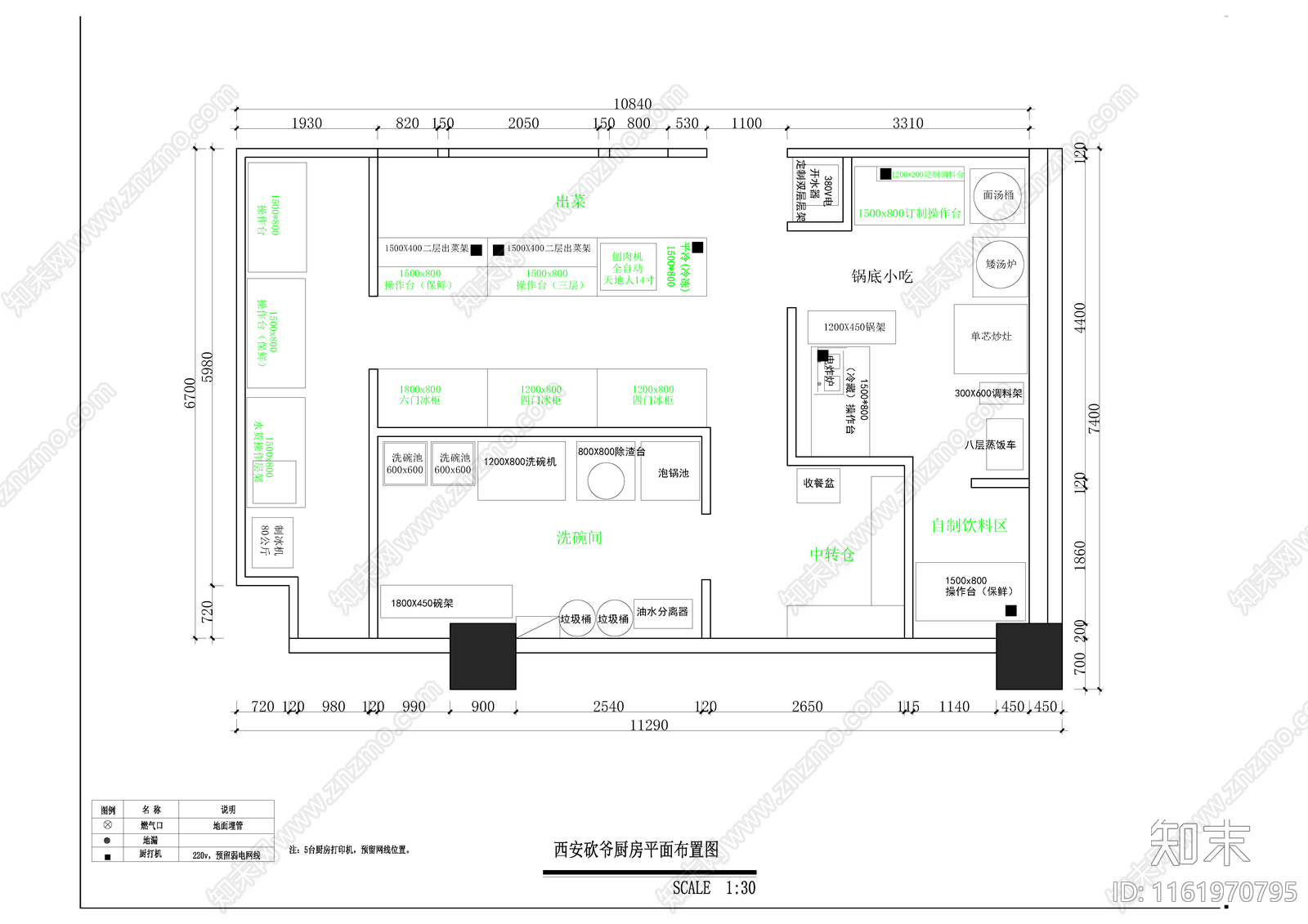
火锅店厨房布局平面图施工图下载【ID:1161970795】

火锅店厨房布局平面图CAD下载

ID: 1161970795
复制
上传作者
景观施工图互粉景观施工图互粉

上传时间2024-05-31

文件大小0.55M

设计风格:--

CAD版本:CAD2007

包含文件:CAD

授权独家

立即下载
收藏
分享
举报
相关推荐
综合
平面图
工装平面图
景观平面图
规划平面图
其他平面图
小区平面图