1/3


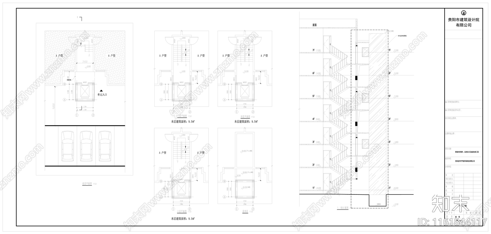
黔南州所辖市县老旧小区加装电梯CAD下载
ID: 1161844117
复制
上传作者
22700700
22700700上传时间2024-05-30
文件大小4.66M
设计风格:--
CAD版本:天正CAD7.0
包含文件:CAD
授权独家
立即下载
收藏
分享
举报
相关推荐
综合
居住建筑
住宅楼建筑
四合院
别墅建筑
其他居住建筑
高层住宅
多层住宅
低层住宅
公寓建筑
联排住宅


22700700上传时间2024-05-30
文件大小4.66M
设计风格:--
CAD版本:天正CAD7.0
包含文件:CAD
授权独家