
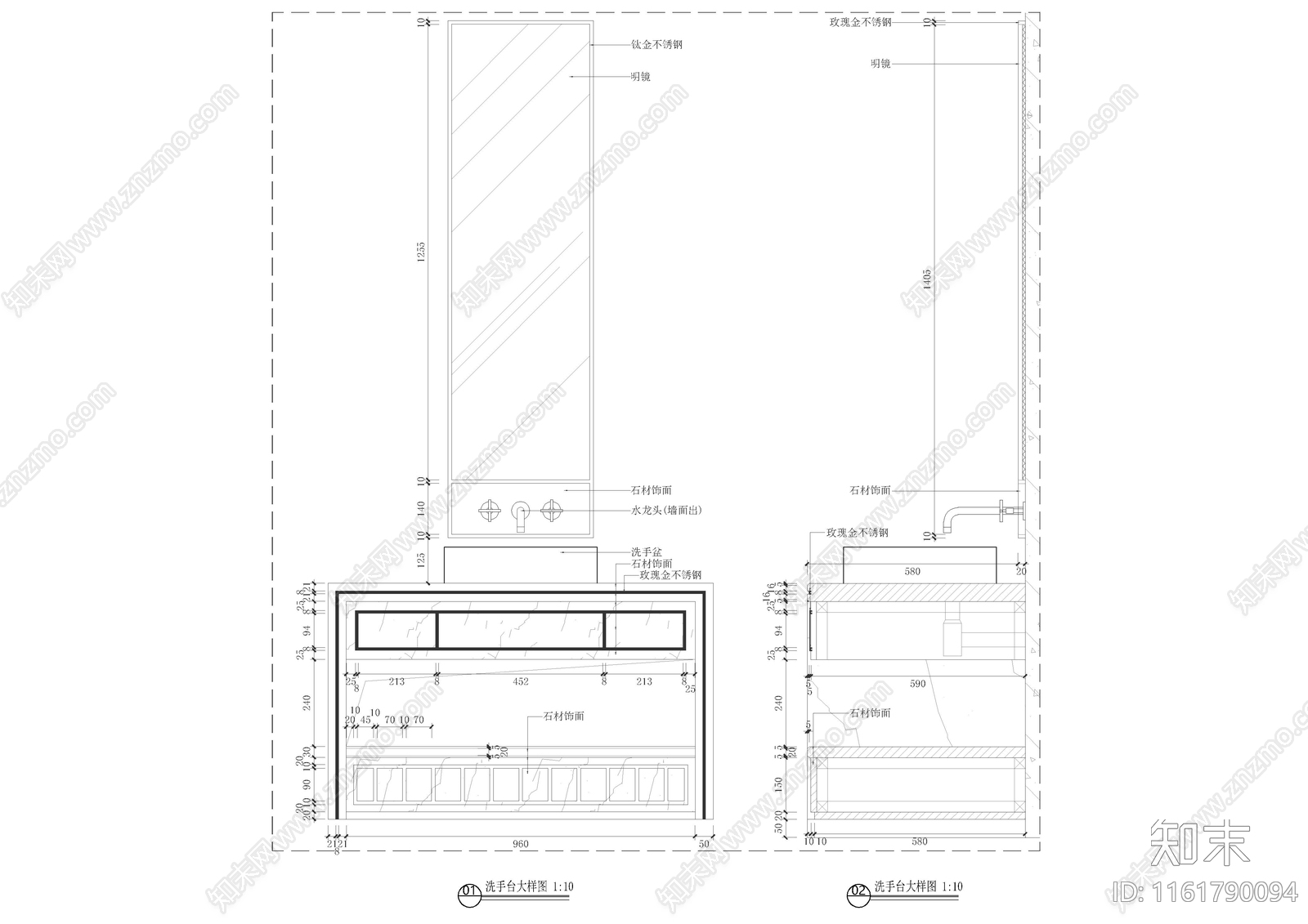
卫生间盥洗太立面及剖面详图CAD下载
ID: 1161790094
复制
上传作者
听风雨平心境(互)
听风雨平心境(互)上传时间2024-05-29
文件大小0.44M
设计风格:--
CAD版本:CAD2004
包含文件:CAD
授权独家
立即下载
收藏
分享
举报
相关推荐
综合
立面图/剖面图
工装立面图
家装立面图
建筑立面图
景观立面图
立面图
剖面图

听风雨平心境(互)上传时间2024-05-29
文件大小0.44M
设计风格:--
CAD版本:CAD2004
包含文件:CAD
授权独家