1/3


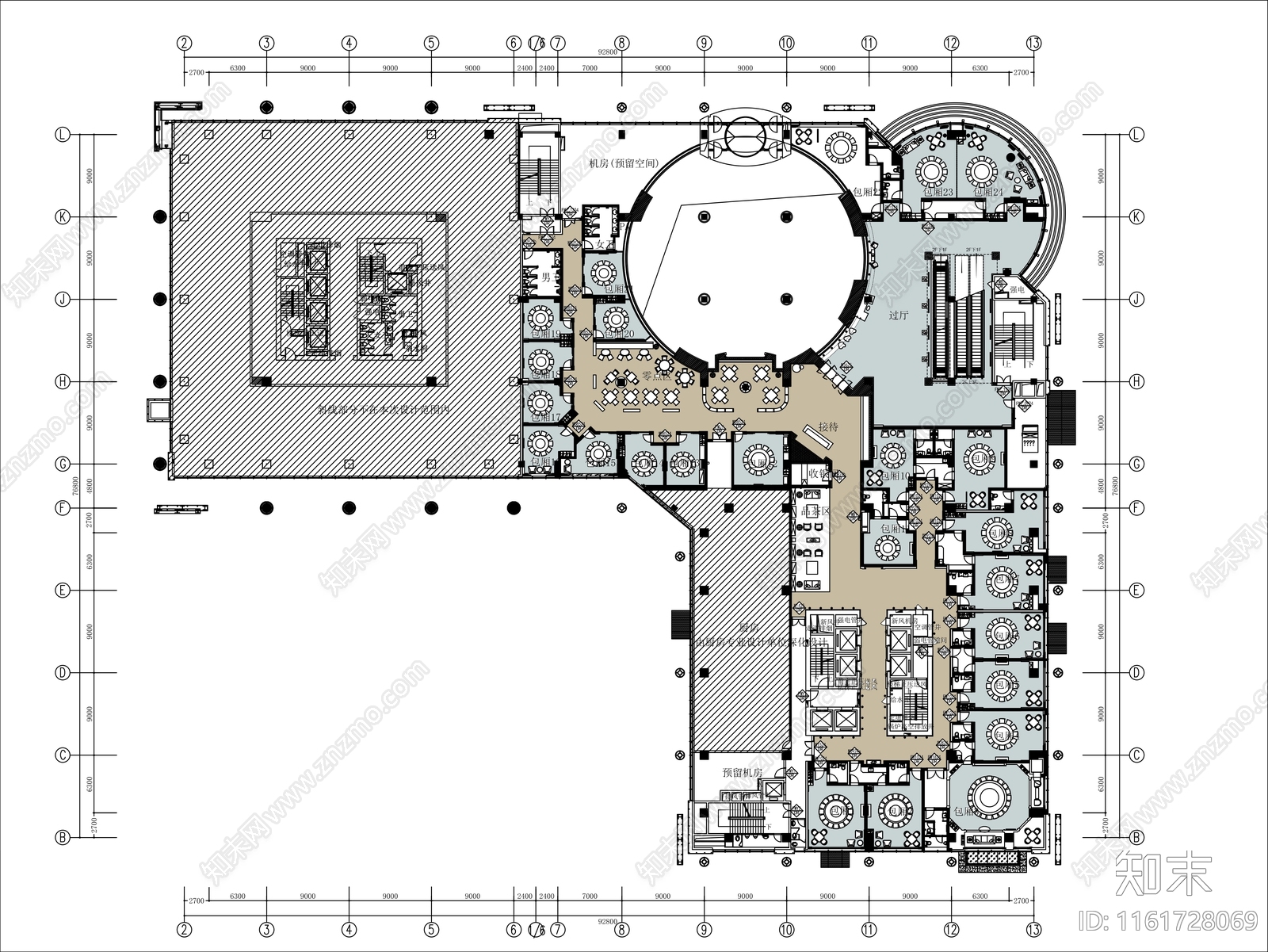
江苏五星级酒店4000㎡综合餐厅CAD下载
ID: 1161728069
复制
上传作者
智取怂猫河
智取怂猫河上传时间2024-05-28
文件大小149.7M
设计风格:--
CAD版本:CAD2014
包含文件:CAD
授权普通
立即下载
收藏
分享
举报
相关推荐
综合
餐饮空间
中餐厅
西餐厅
快餐店
自助餐厅
茶餐厅
其他餐饮空间
食堂
奶茶店
咖啡厅


智取怂猫河上传时间2024-05-28
文件大小149.7M
设计风格:--
CAD版本:CAD2014
包含文件:CAD
授权普通