CAD频道
CAD图库
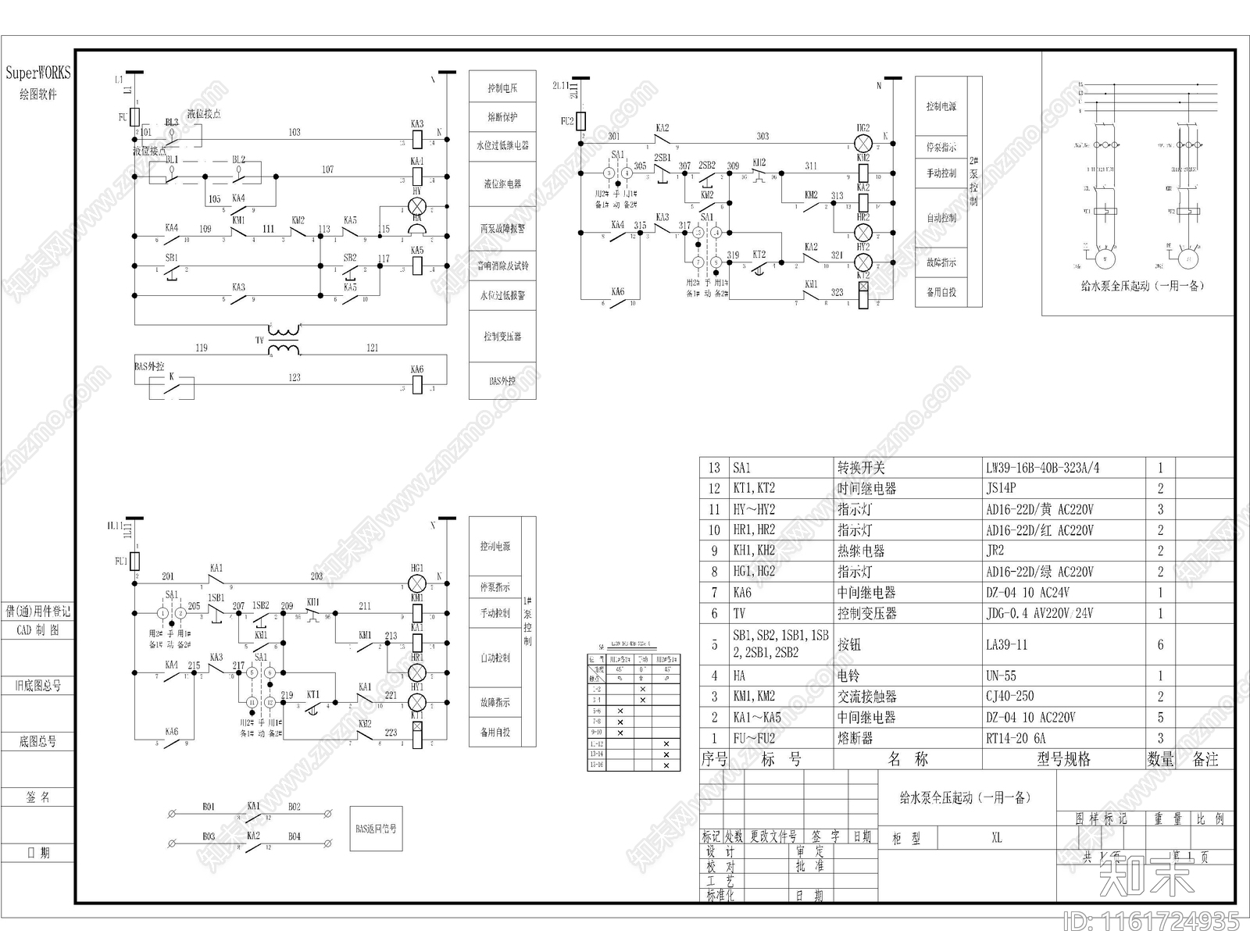
水泵原理图给水排水泵热水循环 施工图
1/
10
Previous
Next
水泵原理图给水排水泵热水循环CAD下载
ID: 1161724935
复制
上传作者
六月0709
上传时间
2024-05-28
文件大小
4.44M
设计风格:
--
CAD版本:
CAD2007
包含文件:
CAD
授权
普通
立即下载
收藏
分享
举报
相关推荐
综合
给排水图
其他给排水
景观给排水
市政给排水