CAD频道
CAD图库
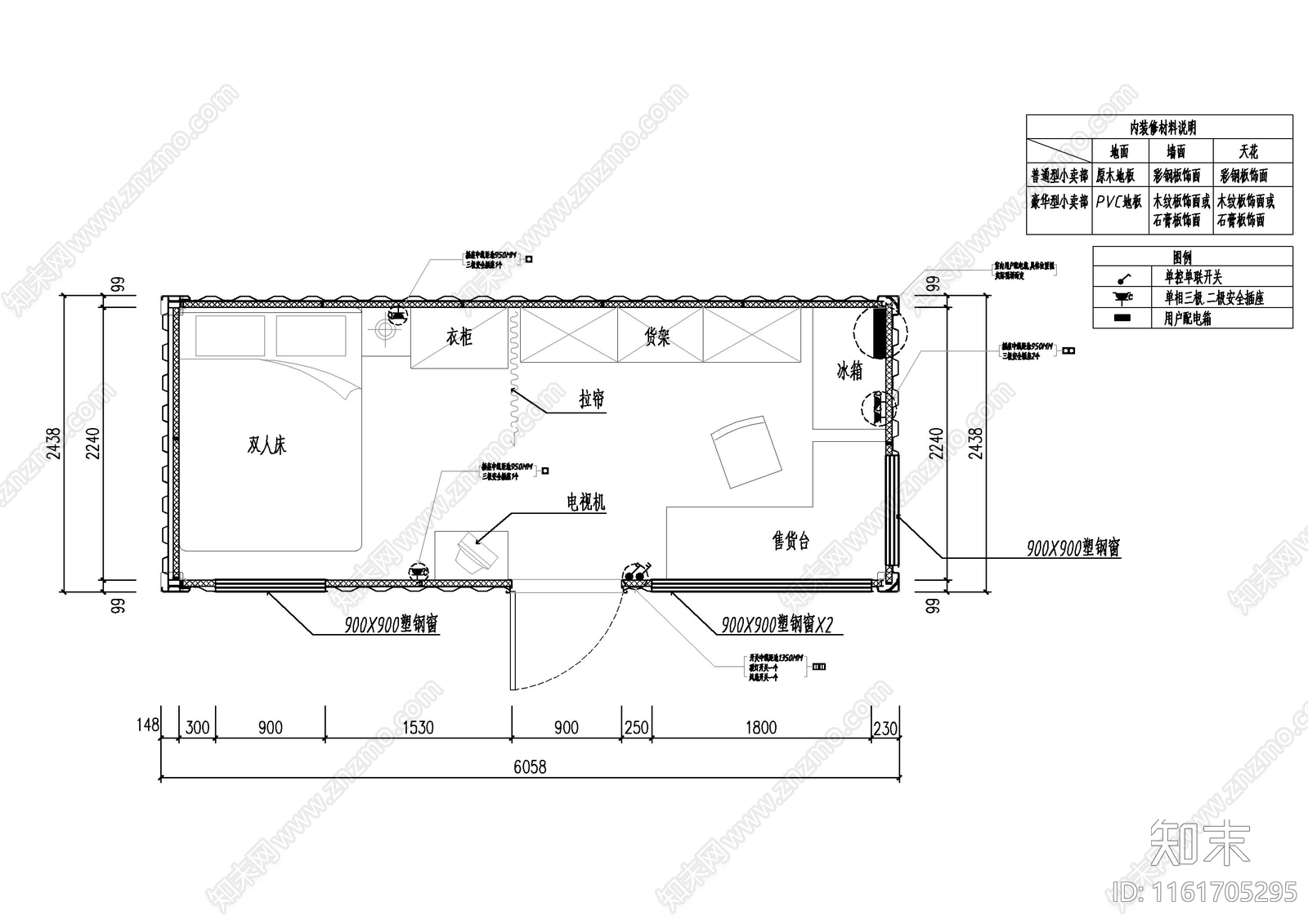
门卫值班室集装箱平面图
1/
3
Previous
Next
门卫值班室集装箱平面图CAD下载
ID: 1161705295
复制
上传作者
小趴菜园
上传时间
2024-05-28
文件大小
1.98M
设计风格:
--
CAD版本:
CAD2004
包含文件:
CAD
授权
独家
立即下载
收藏
分享
举报
相关推荐
综合
平面图
工装平面图
景观平面图
规划平面图
其他平面图
小区平面图