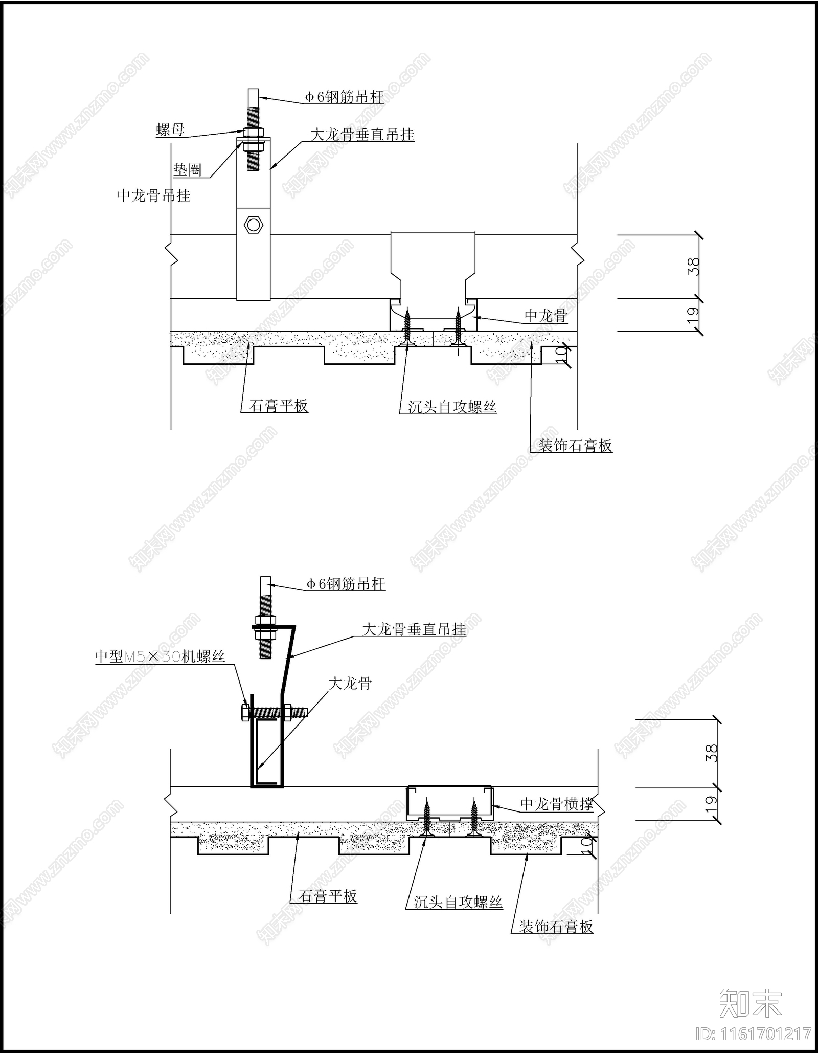
38轻型基本安装施工图下载【ID:1161701217】

38轻型基本安装CAD下载

ID: 1161701217
复制
上传作者
小小尘壑小小尘壑

上传时间2024-05-28

文件大小0.1M

设计风格:--

CAD版本:CAD2004

包含文件:CAD

授权独家

立即下载
收藏
分享
举报
相关推荐
综合
吊顶节点
方通吊顶
格栅吊顶
扣板吊顶
软膜天花
铝单板吊顶
GRG吊顶节点
石膏板吊顶
矿棉板吊顶