CAD频道
CAD图库
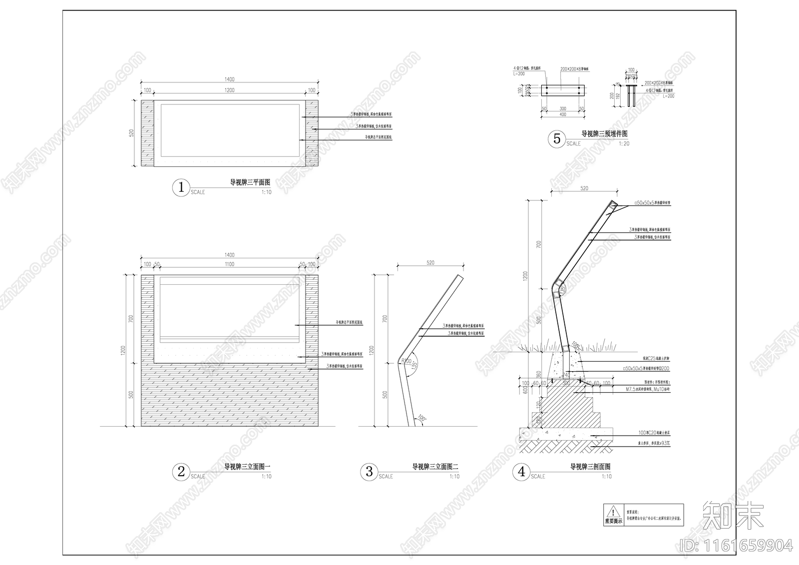
导视牌详图 施工图
1/
3
Previous
Next
导视牌详图CAD下载
ID: 1161659904
复制
上传作者
景观施工图互粉
上传时间
2024-05-28
文件大小
3.1M
设计风格:
--
CAD版本:
CAD2007
包含文件:
CAD
授权
独家
立即下载
收藏
分享
举报
相关推荐
综合
景观小品
标识
亭子
廊架
景墙
综合景观小品
雨棚
围墙
挡土墙
入口