CAD频道
CAD图库
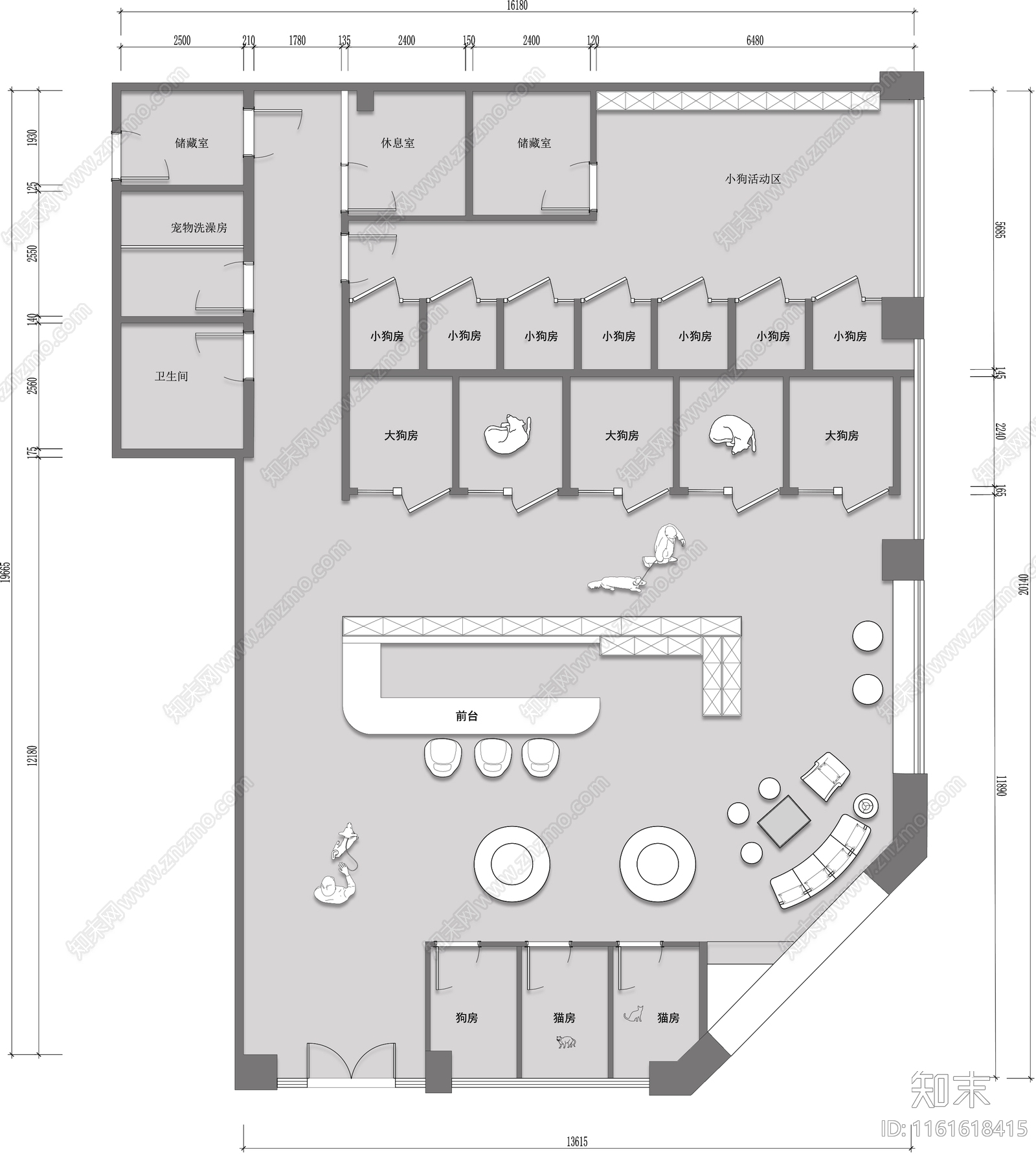
宠物店平面布置图图
1/
2
Previous
Next
宠物店平面布置图图CAD下载
ID: 1161618415
复制
上传作者
精品创图
上传时间
2024-05-27
文件大小
0.15M
设计风格:
--
CAD版本:
CAD2004
包含文件:
CAD
授权
独家
立即下载
收藏
分享
举报
相关推荐
综合
平面图
工装平面图
景观平面图
规划平面图
其他平面图
小区平面图