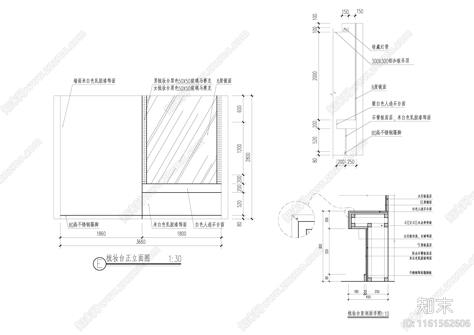
梳妆台大样图施工图下载【ID:1161562606】

梳妆台大样图CAD下载

ID: 1161562606
复制
上传作者
景观施工图互粉景观施工图互粉

上传时间2024-05-27

文件大小0.75M

设计风格:--

CAD版本:CAD2007

包含文件:CAD

授权独家

立即下载
收藏
分享
举报
相关推荐
综合
家具节点详图
综合家具节点
吧台节点
壁炉节点
柜体节点
卡座节点
前台节点