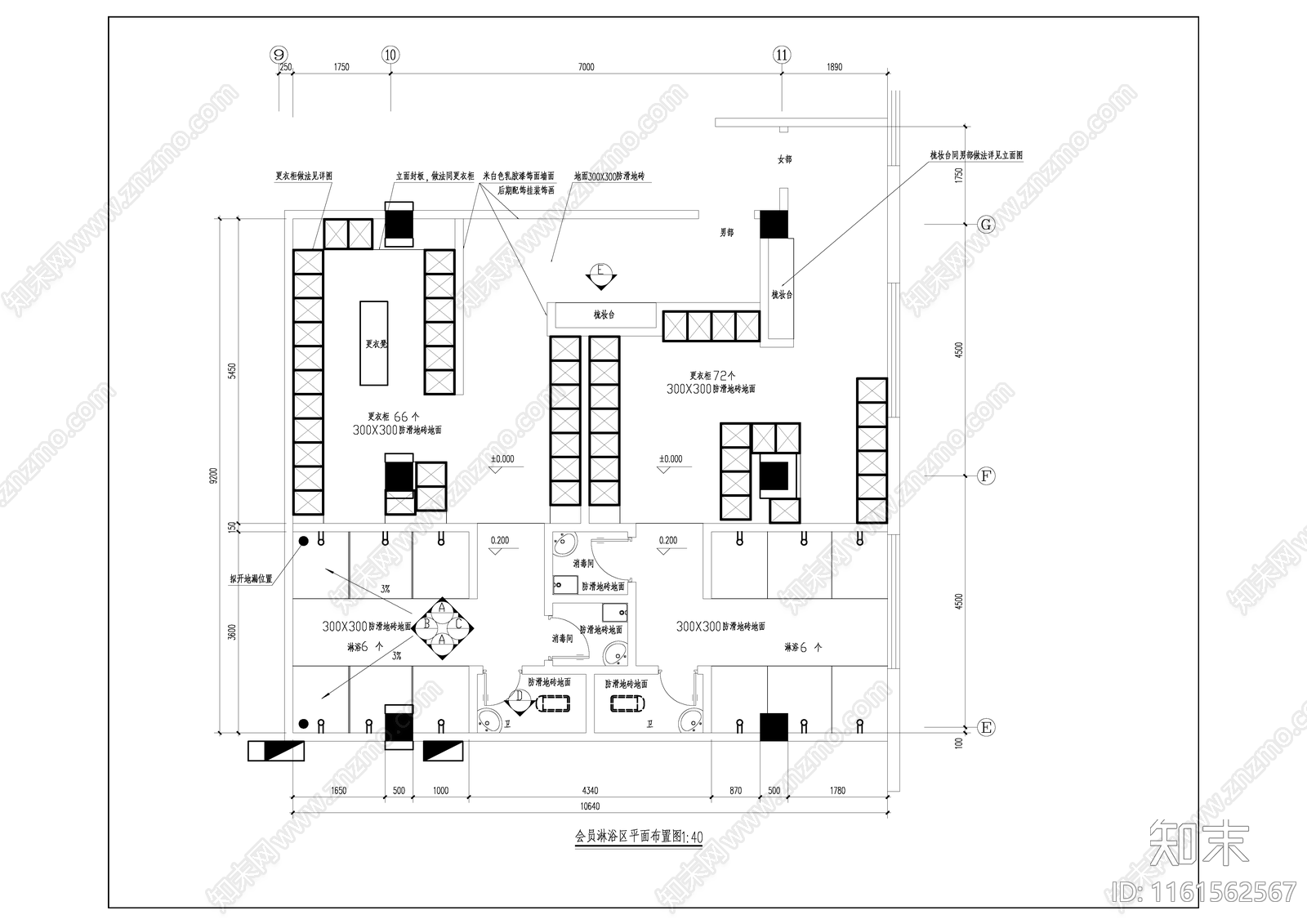
健身会所淋浴区布置平面图施工图下载【ID:1161562567】

健身会所淋浴区布置平面图CAD下载

ID: 1161562567
复制
上传作者
景观施工图互粉景观施工图互粉

上传时间2024-05-27

文件大小0.83M

设计风格:--

CAD版本:CAD2007

包含文件:CAD

授权独家

立即下载
收藏
分享
举报
相关推荐
综合
平面图
工装平面图
景观平面图
规划平面图
其他平面图
小区平面图