
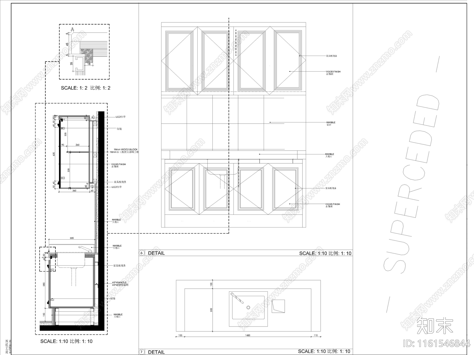
KTV包厢操作柜大样图CAD下载
ID: 1161546844
复制
上传作者
24521004161016
24521004161016上传时间2024-05-26
文件大小1.4M
设计风格:--
CAD版本:CAD2018
包含文件:CAD
授权独家
立即下载
收藏
分享
举报
相关推荐
综合
家具节点详图
柜体节点
吧台节点
壁炉节点
卡座节点
前台节点
综合家具节点

24521004161016上传时间2024-05-26
文件大小1.4M
设计风格:--
CAD版本:CAD2018
包含文件:CAD
授权独家