CAD频道
CAD图库
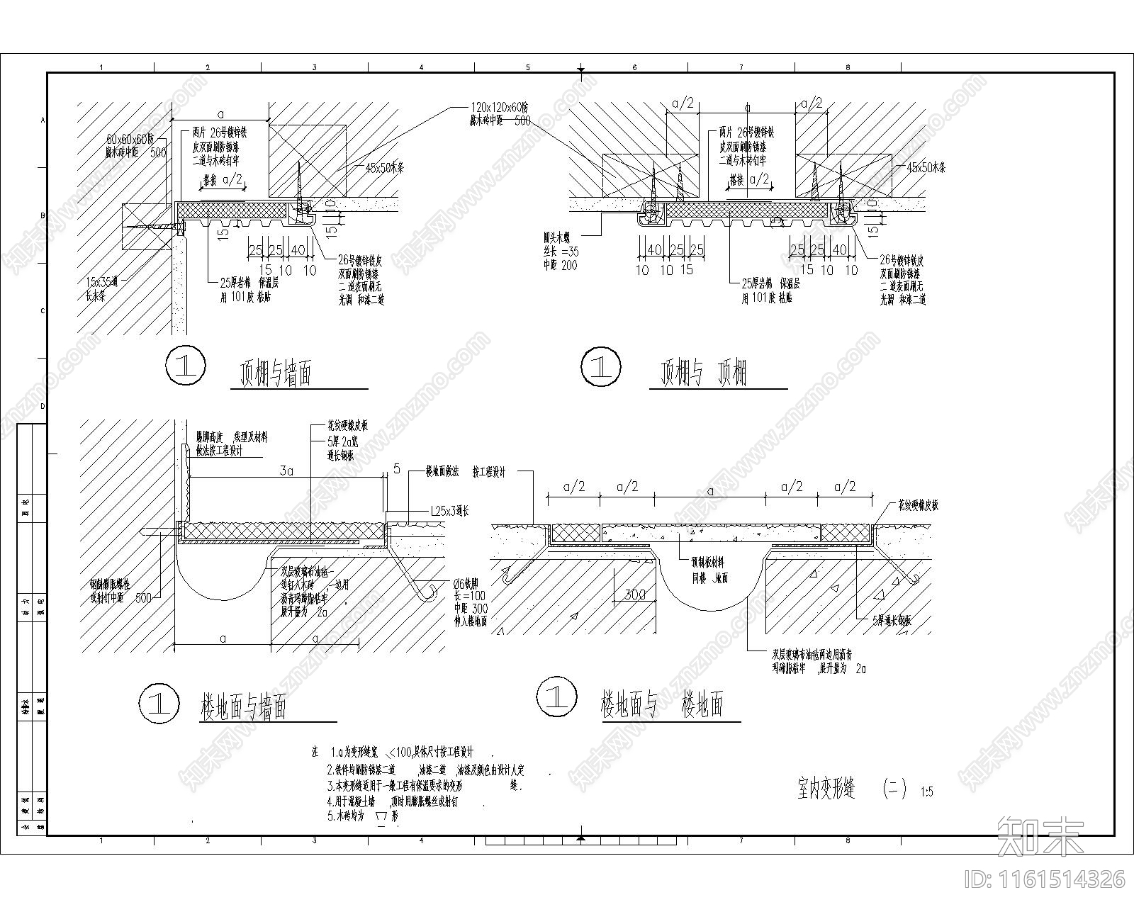
室内变形缝 施工图
1/
3
Previous
Next
室内变形缝CAD下载
ID: 1161514326
复制
上传作者
撞大墙啦
上传时间
2024-05-26
文件大小
0.42M
设计风格:
--
CAD版本:
CAD2004
包含文件:
CAD
授权
普通
立即下载
收藏
分享
举报
相关推荐
综合
地面节点
地面综合节点
地坪漆
地台节点
地毯节点
路面节点
门槛石节点
木地板
花岗岩