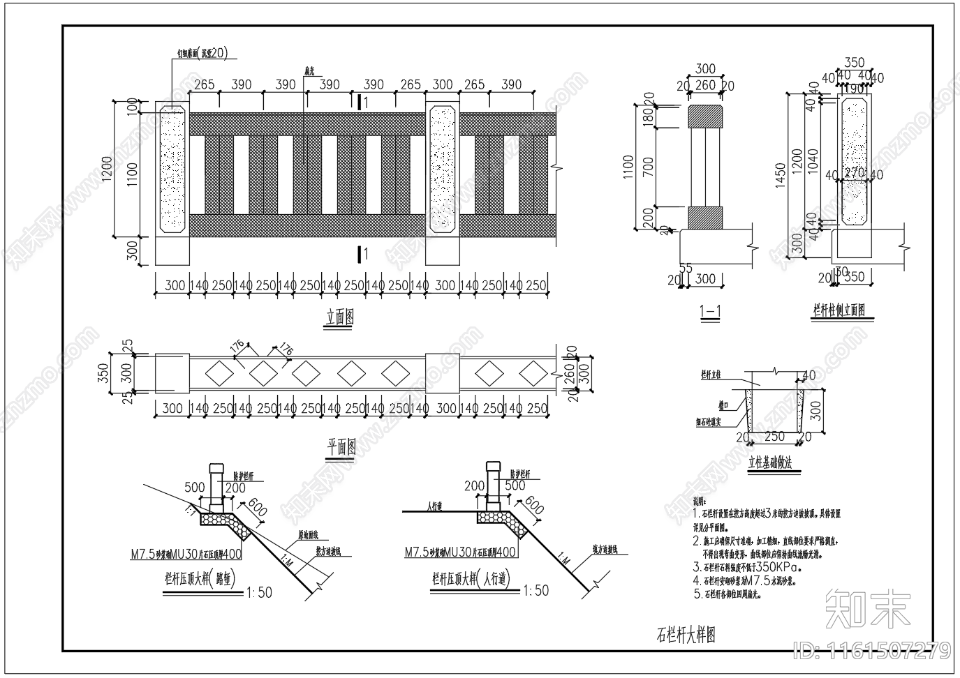
市政道路石栏杆大样图施工图下载【ID:1161507279】

市政道路石栏杆大样图CAD下载

ID: 1161507279
复制
上传作者
小小鱼鱼小小鱼鱼

上传时间2024-05-26

文件大小0.09M

设计风格:--

CAD版本:CAD2004

包含文件:CAD

授权独家

立即下载
收藏
分享
举报
相关推荐
综合
景观小品
栏杆
亭子
廊架
景墙
综合景观小品
雨棚
围墙
挡土墙
入口