
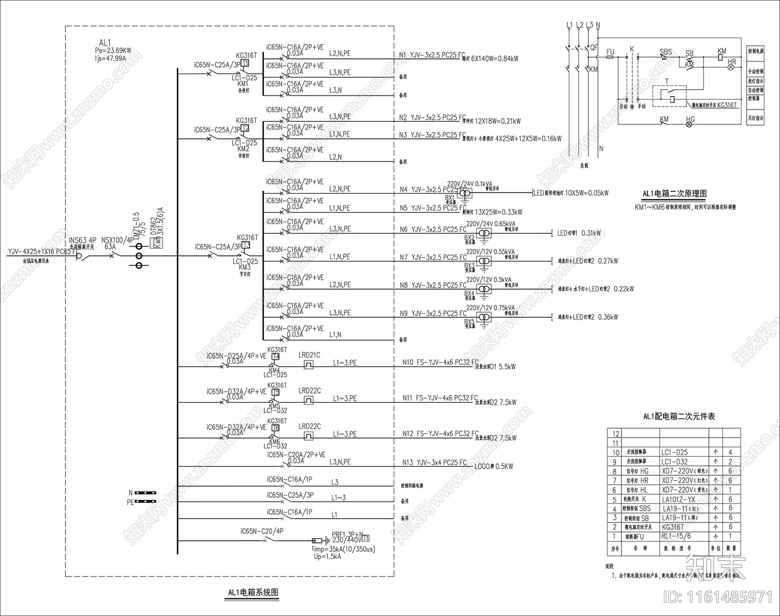
景观电箱系统图CAD下载
ID: 1161485971
复制
上传作者
吉米景观(互粉)
吉米景观(互粉)上传时间2024-05-25
文件大小0.05M
设计风格:--
CAD版本:天正CAD5.0
包含文件:CAD
授权普通
立即下载
收藏
分享
举报
相关推荐
综合
机电工程
电气图
给排水图
水处理
暖通空调
电气工程节点
消防设施
机械设备
其他机电图纸
建筑给排水

吉米景观(互粉)上传时间2024-05-25
文件大小0.05M
设计风格:--
CAD版本:天正CAD5.0
包含文件:CAD
授权普通