1/2


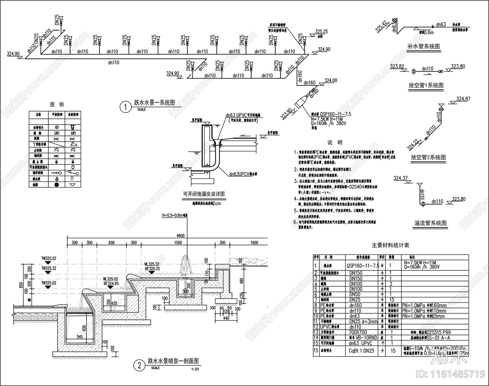
跌水水景喷泉平面图剖面图CAD下载
ID: 1161485719
复制
上传作者
吉米景观(互粉)
吉米景观(互粉)上传时间2024-05-25
文件大小0.47M
设计风格:--
CAD版本:天正CAD5.0
包含文件:CAD
授权普通
立即下载
收藏
分享
举报
相关推荐
综合
节点详图
水景
吊顶节点
墙面节点
地面节点
门节点
其他节点详图
建筑工程节点
景观小品
楼梯节点


吉米景观(互粉)上传时间2024-05-25
文件大小0.47M
设计风格:--
CAD版本:天正CAD5.0
包含文件:CAD
授权普通