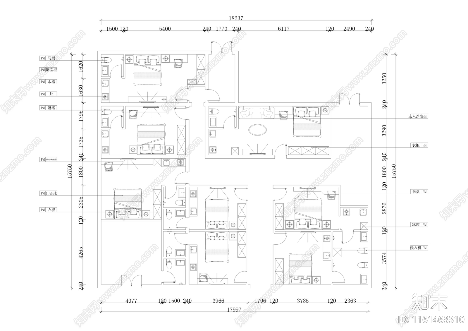
公寓平面布置图施工图下载【ID:1161463310】

公寓平面布置图CAD下载

ID: 1161463310
复制
上传作者
理想三旬理想三旬

上传时间2024-05-25

文件大小0.38M

设计风格:--

CAD版本:CAD2007

包含文件:CAD

授权普通

立即下载
收藏
分享
举报
相关推荐
综合
平立面系统图
家装平面图
建筑平面图
平面图
立面图/剖面图