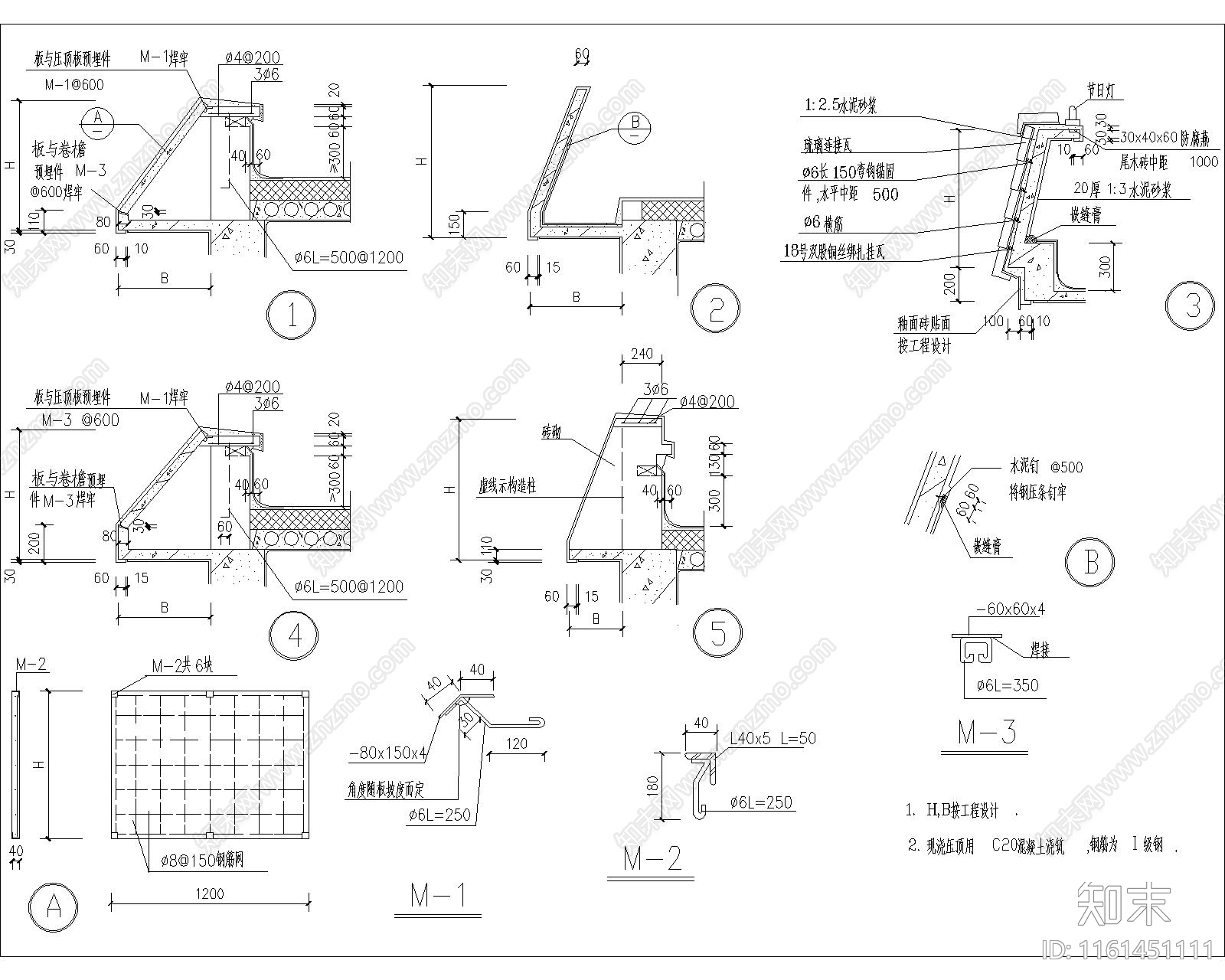
女儿墙及泛水2施工图下载【ID:1161451111】

女儿墙及泛水2CAD下载

ID: 1161451111
复制
上传作者
撞大墙啦撞大墙啦

上传时间2024-05-25

文件大小0.11M

设计风格:--

CAD版本:CAD2004

包含文件:CAD

授权普通

立即下载
收藏
分享
举报
相关推荐
综合
墙面节点
背景墙节点
轻钢龙骨隔墙
壁龛节点
隔音墙节点