
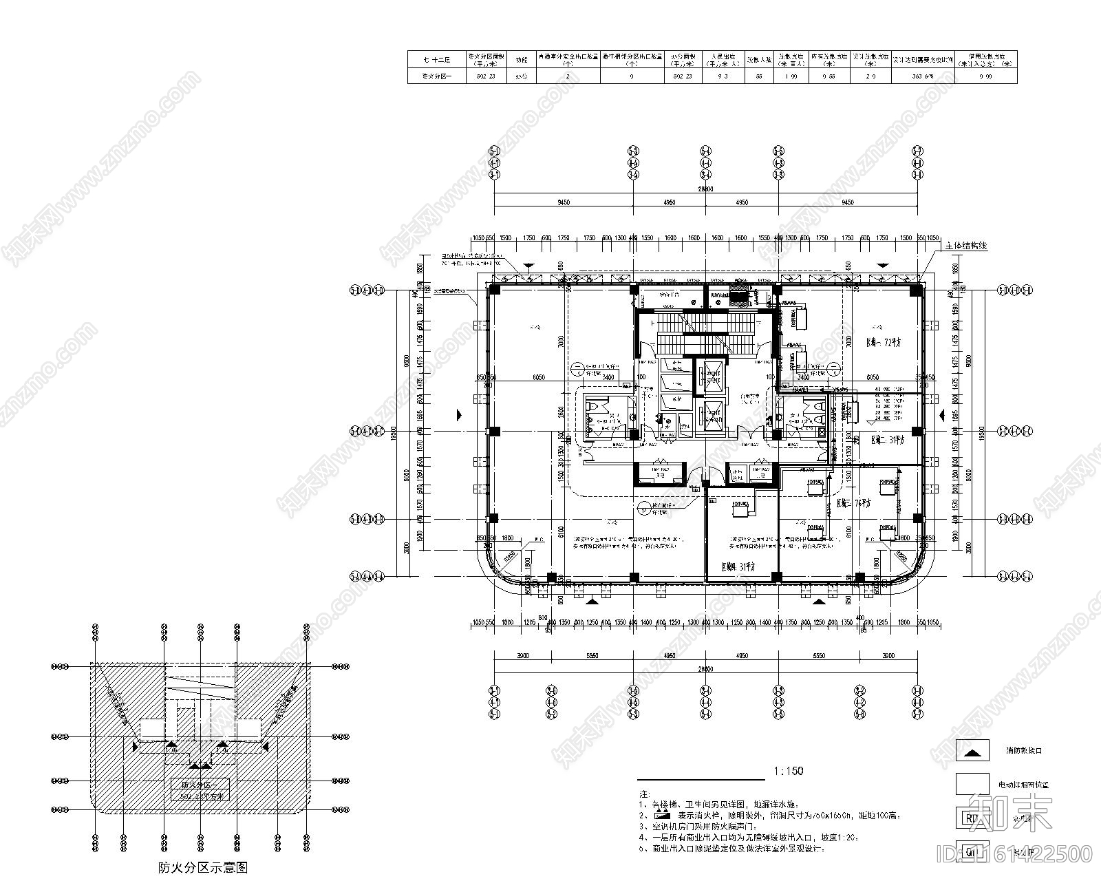
写字楼中央空调点位图CAD下载
ID: 1161422500
复制
上传作者
DHD空间设计
DHD空间设计上传时间2024-05-24
文件大小0.65M
设计风格:--
CAD版本:CAD2018
包含文件:CAD
授权独家
立即下载
收藏
分享
举报
相关推荐
综合
机电工程
暖通空调
给排水图
水处理
电气图
电气工程节点
消防设施
机械设备
其他机电图纸
建筑给排水

DHD空间设计上传时间2024-05-24
文件大小0.65M
设计风格:--
CAD版本:CAD2018
包含文件:CAD
授权独家