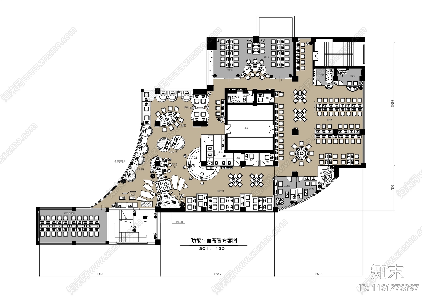
1000㎡电竞俱乐部网吧施工图下载【ID:1161276397】

1000㎡电竞俱乐部网吧CAD下载

ID: 1161276397
复制
上传作者
智取怂猫河智取怂猫河

上传时间2024-05-23

文件大小2.06M

设计风格:--

CAD版本:CAD2004

包含文件:CAD

授权独家

立即下载
收藏
分享
举报
相关推荐
综合
平面图
工装平面图
景观平面图
规划平面图
其他平面图
小区平面图