CAD频道
CAD图库
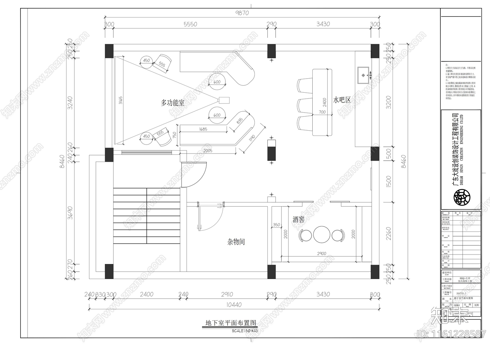
婺源晓起民宿平面布置图 施工图
1/
4
Previous
Next
婺源晓起民宿平面布置图CAD下载
ID: 1161228587
复制
上传作者
Charm
上传时间
2024-05-22
文件大小
5.36M
设计风格:
--
CAD版本:
CAD2012
包含文件:
CAD
授权
独家
立即下载
收藏
分享
举报
相关推荐
综合
平面图
工装平面图
景观平面图
规划平面图
其他平面图
小区平面图