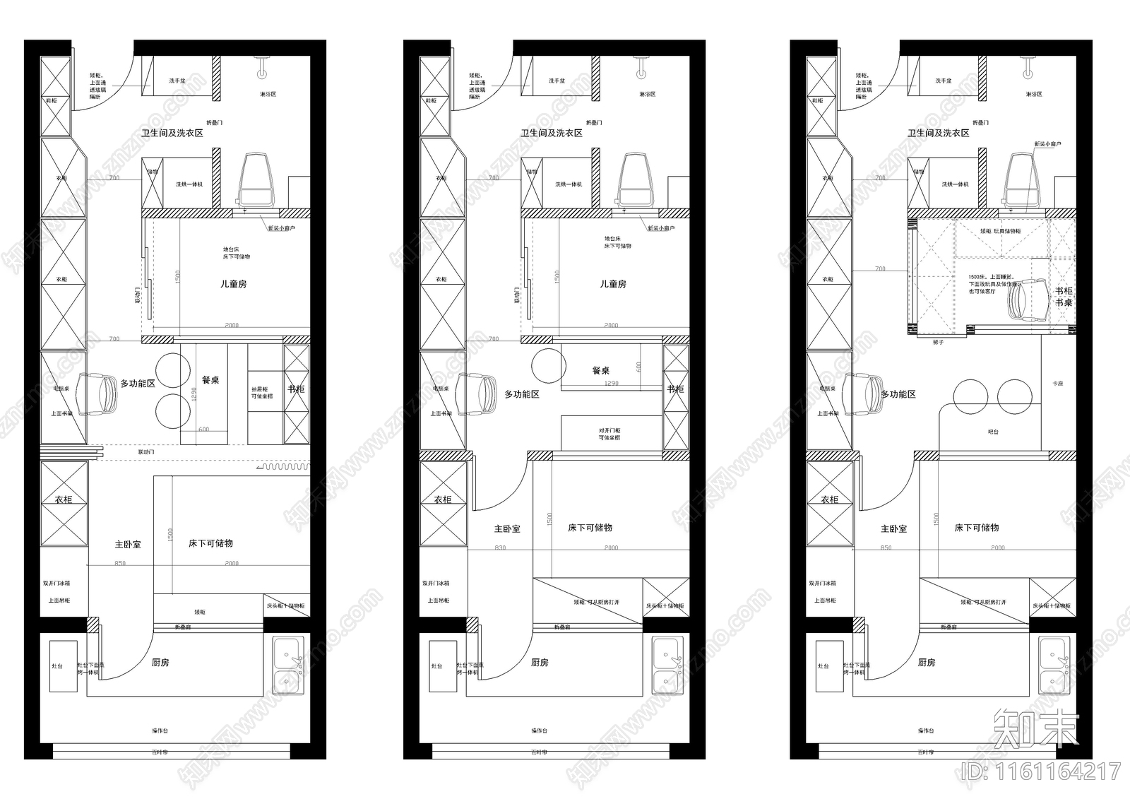
单身公寓布局方案组合施工图下载【ID:1161164217】

单身公寓布局方案组合CAD下载

ID: 1161164217
复制
上传作者
浅浅~~浅浅~~

上传时间2024-05-22

文件大小0.48M

设计风格:--

CAD版本:CAD2014

包含文件:CAD

授权普通

立即下载
收藏
分享
举报
相关推荐
综合
平立面系统图
家装平面图
建筑平面图
平面图
立面图/剖面图