CAD频道
CAD图库
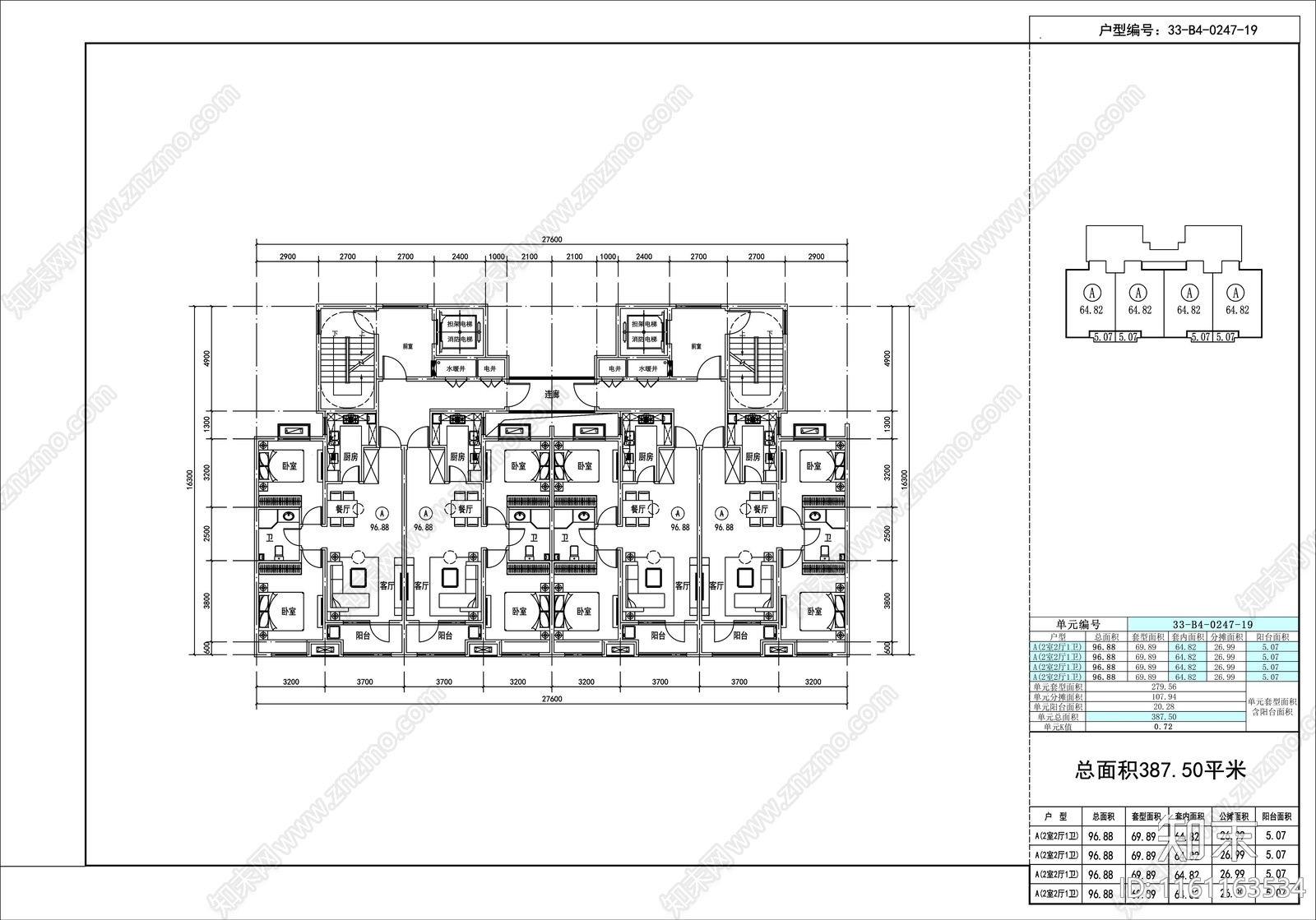
90套33F分交通核连廊户型合集 t8 施工图 别墅 家装平面图
1/
5
Previous
Next
90套33F分交通核连廊户型合集CAD下载
ID: 1161163534
复制
上传作者
我是火龙果
上传时间
2024-05-22
文件大小
5.09M
设计风格:
--
CAD版本:
天正CAD8.0
包含文件:
CAD
授权
独家
立即下载
收藏
分享
举报
相关推荐
综合
平立面系统图
家装平面图
建筑平面图
平面图
立面图/剖面图