
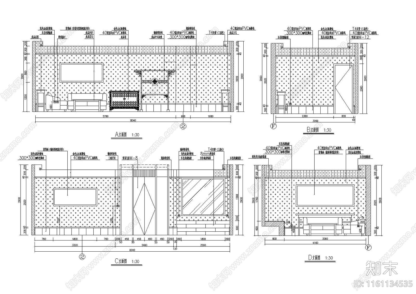
茶楼过道立面图CAD下载
ID: 1161134535
复制
上传作者
24521004161016
24521004161016上传时间2024-05-21
文件大小0.69M
设计风格:--
CAD版本:CAD2018
包含文件:CAD
授权独家
立即下载
收藏
分享
举报
相关推荐
综合
工装图库
工装综合图库
办公家具图库
酒店家具
餐厅家具
展览展厅家具

24521004161016上传时间2024-05-21
文件大小0.69M
设计风格:--
CAD版本:CAD2018
包含文件:CAD
授权独家