
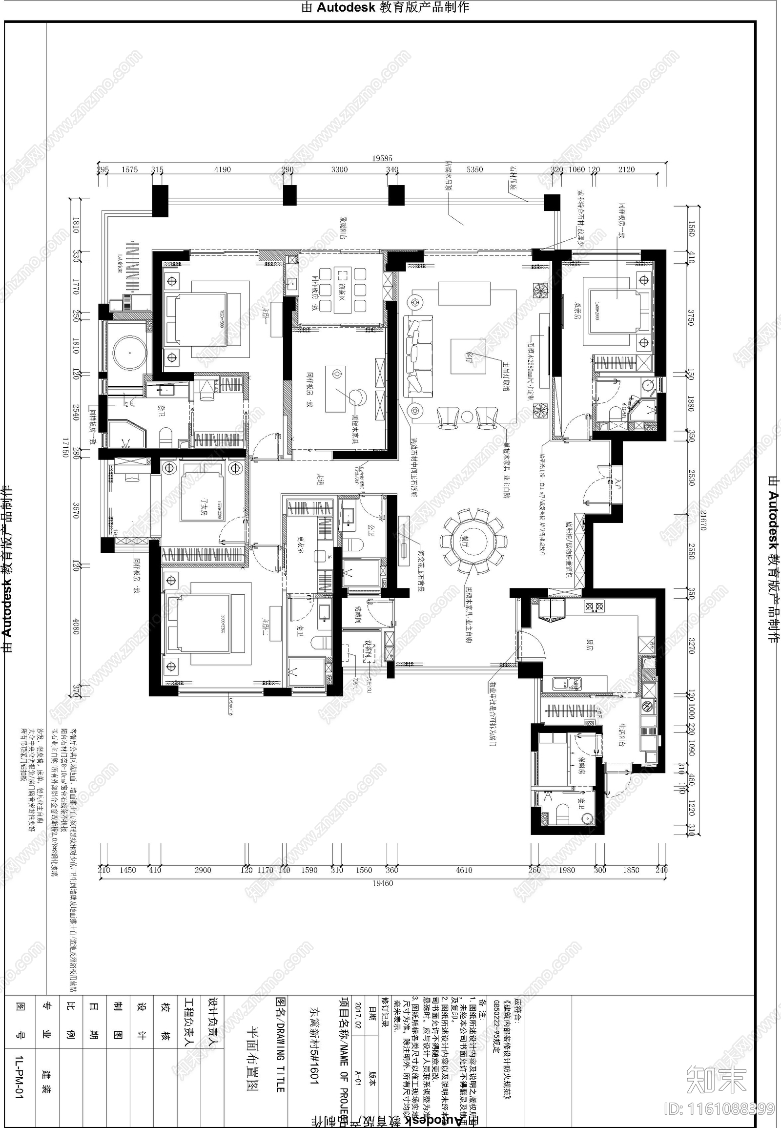
350大平层平面布局CAD下载
ID: 1161088399
复制
上传作者
24521004161016
24521004161016上传时间2024-05-21
文件大小0.23M
设计风格:--
CAD版本:CAD2013
包含文件:CAD
授权独家
立即下载
收藏
分享
举报
相关推荐
综合
家具图库
沙发
桌椅
床
吧台
柜子
榻榻米
椅子
桌子
遮阳伞

24521004161016上传时间2024-05-21
文件大小0.23M
设计风格:--
CAD版本:CAD2013
包含文件:CAD
授权独家