CAD频道
CAD图库
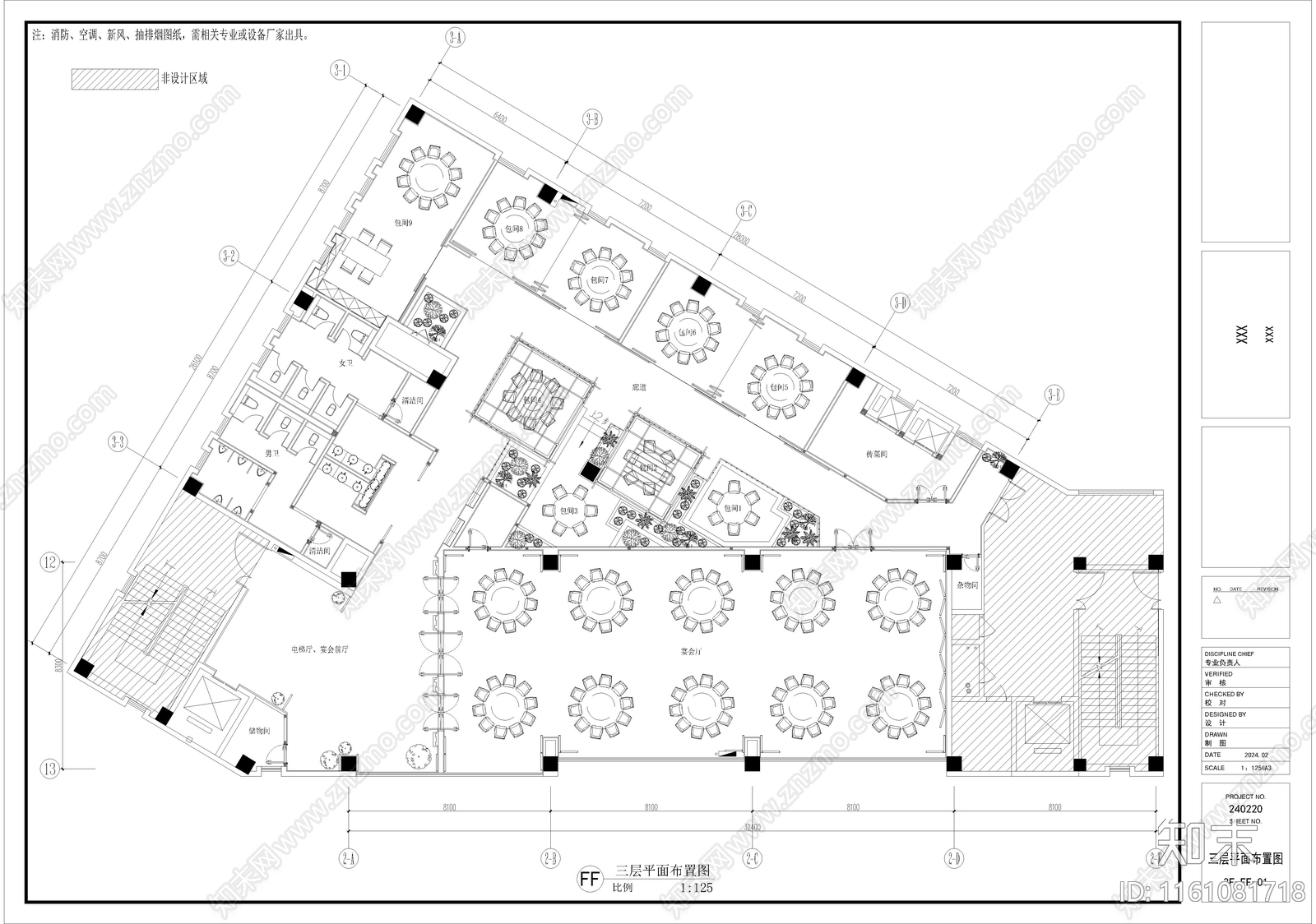
中餐厅三层宴会厅餐厅包间平面方 施工图
1/
7
Previous
Next
中餐厅三层宴会厅餐厅包间平面方CAD下载
ID: 1161081718
复制
上传作者
碎银
上传时间
2024-05-21
文件大小
4.09M
设计风格:
--
CAD版本:
CAD2004
包含文件:
CAD
授权
普通
立即下载
收藏
分享
举报
相关推荐
综合
餐饮空间
中餐厅
西餐厅
快餐店
自助餐厅
茶餐厅
其他餐饮空间
食堂
奶茶店
咖啡厅