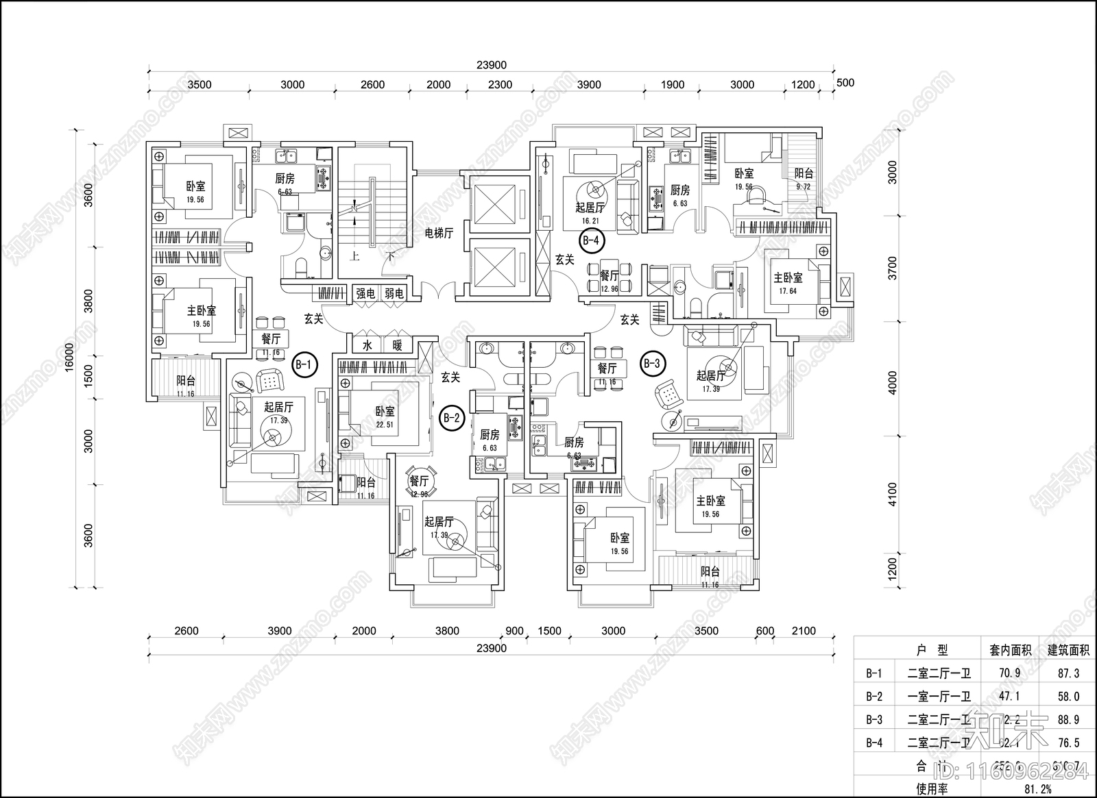
18层一梯四户住宅标准层平面图施工图下载【ID:1160962284】

18层一梯四户住宅标准层平面图CAD下载

ID: 1160962284
复制
上传作者
萍萍萍萍

上传时间2024-05-19

文件大小0.17M

设计风格:--

CAD版本:天正CAD7.0

包含文件:CAD

授权普通

立即下载
收藏
分享
举报
相关推荐
综合
户型优化
一梯四户
一梯两户
一梯三户
两梯四户