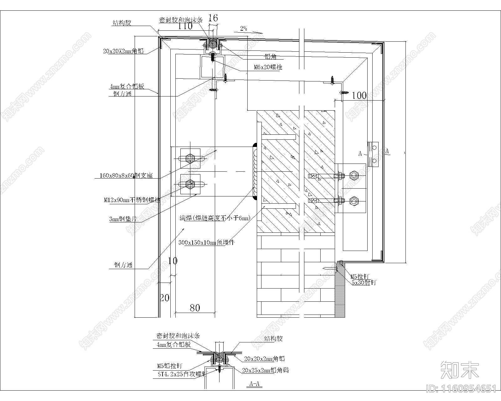
塑铝板幕墙楼顶纵剖节点图施工图下载【ID:1160954651】

塑铝板幕墙楼顶纵剖节点图CAD下载

ID: 1160954651
复制
上传作者
撞大墙啦撞大墙啦

上传时间2024-05-19

文件大小0.14M

设计风格:--

CAD版本:CAD2004

包含文件:CAD

授权普通

立即下载
收藏
分享
举报
相关推荐
综合
结构设计
幕墙结构
混凝土结构
钢结构
砌体结构
木结构
结构节点图
其他结构图纸