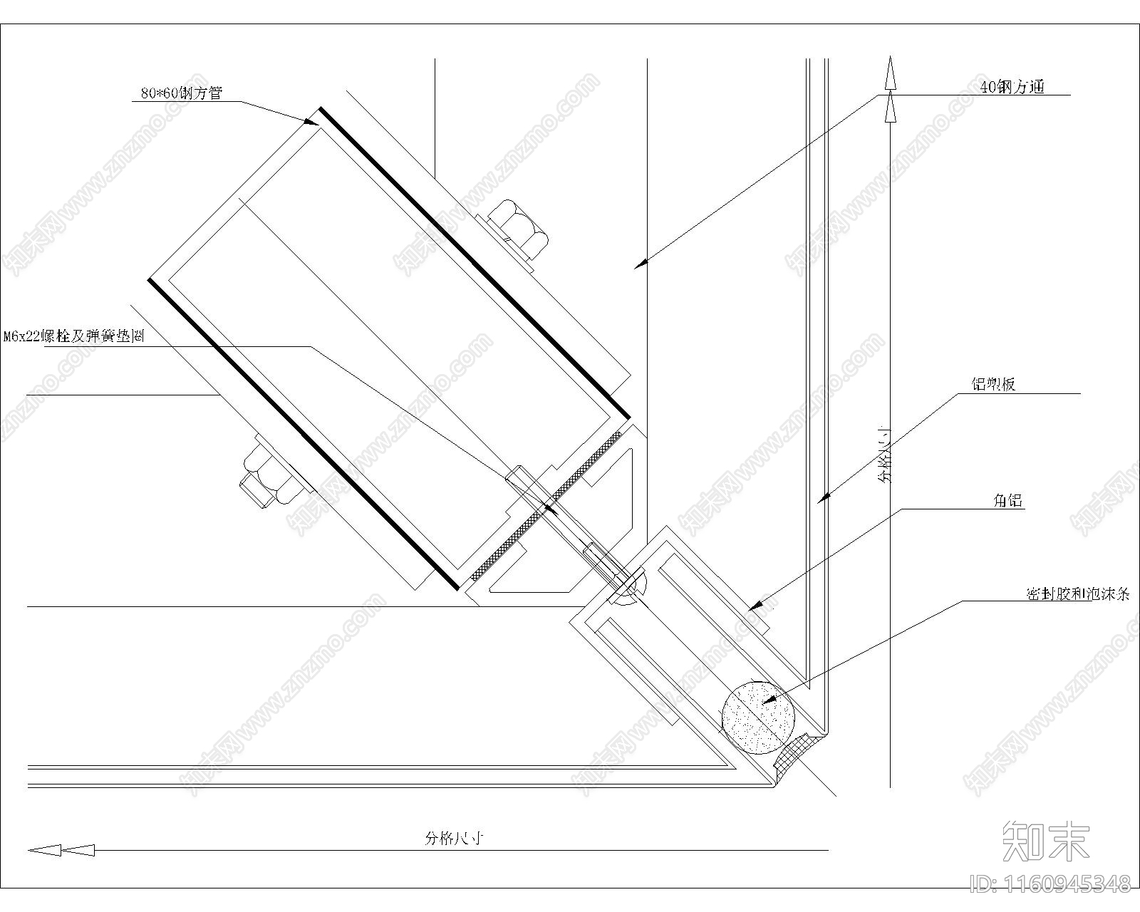
铝塑板阳角节点图施工图下载【ID:1160945348】

铝塑板阳角节点图CAD下载

ID: 1160945348
复制
上传作者
撞大墙啦撞大墙啦

上传时间2024-05-19

文件大小0.13M

设计风格:--

CAD版本:CAD2004

包含文件:CAD

授权普通

立即下载
收藏
分享
举报
相关推荐
综合
结构节点图
其他结构设计
桁架
钢结构节点
混凝土节点
幕墙结构节点
转换层