1/3


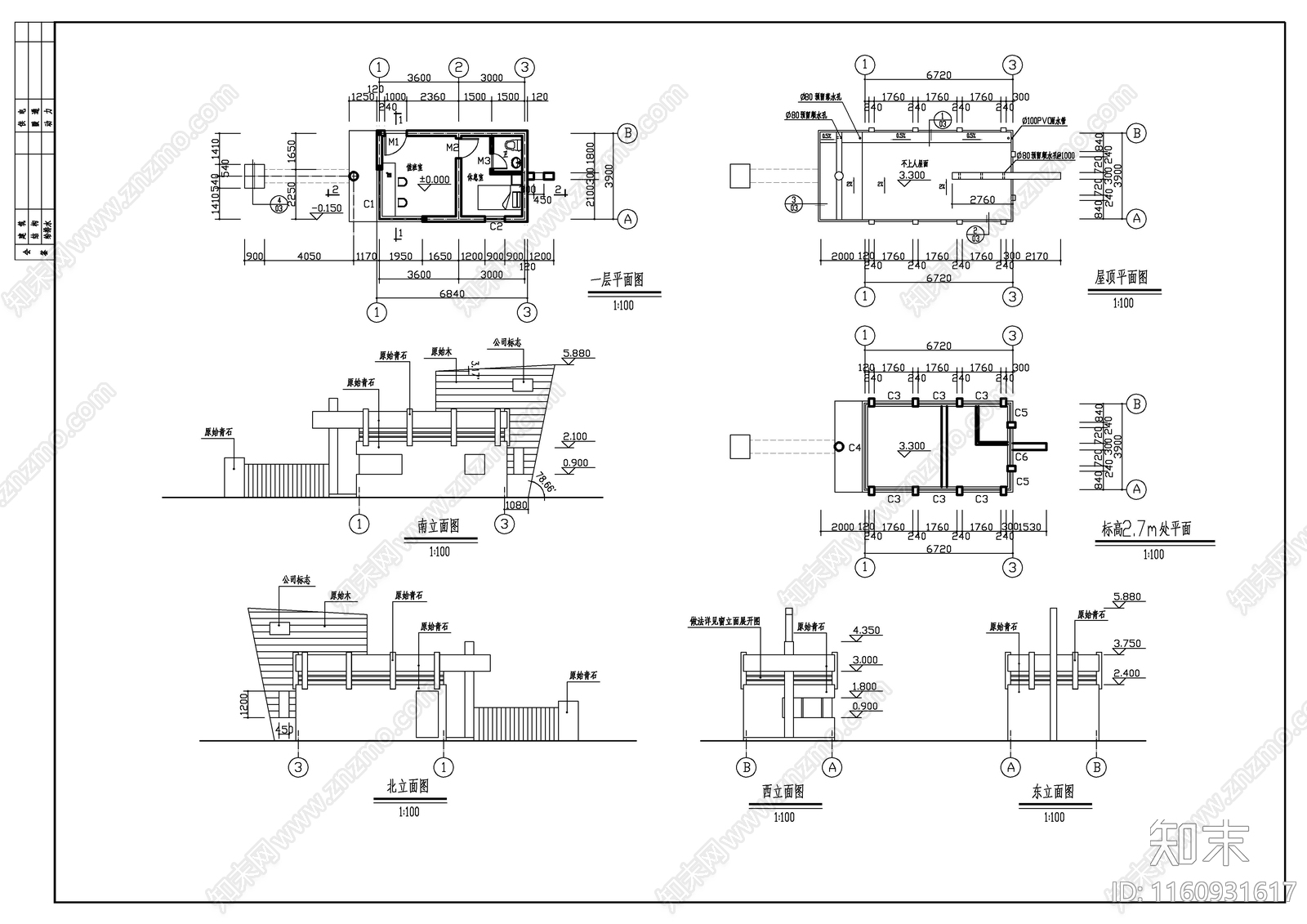
门卫值班传达室建施图CAD下载
ID: 1160931617
复制
上传作者
承诺不熬椰
承诺不熬椰上传时间2024-05-19
文件大小0.13M
设计风格:--
CAD版本:CAD2004
包含文件:CAD
授权独家
立即下载
收藏
分享
举报
相关推荐
综合
公共建筑
门卫室建筑
会议中心建筑
公厕
行政机构建筑
其他公共建筑
医院建筑
停车楼
消防站
集装箱


承诺不熬椰上传时间2024-05-19
文件大小0.13M
设计风格:--
CAD版本:CAD2004
包含文件:CAD
授权独家