CAD频道
CAD图库
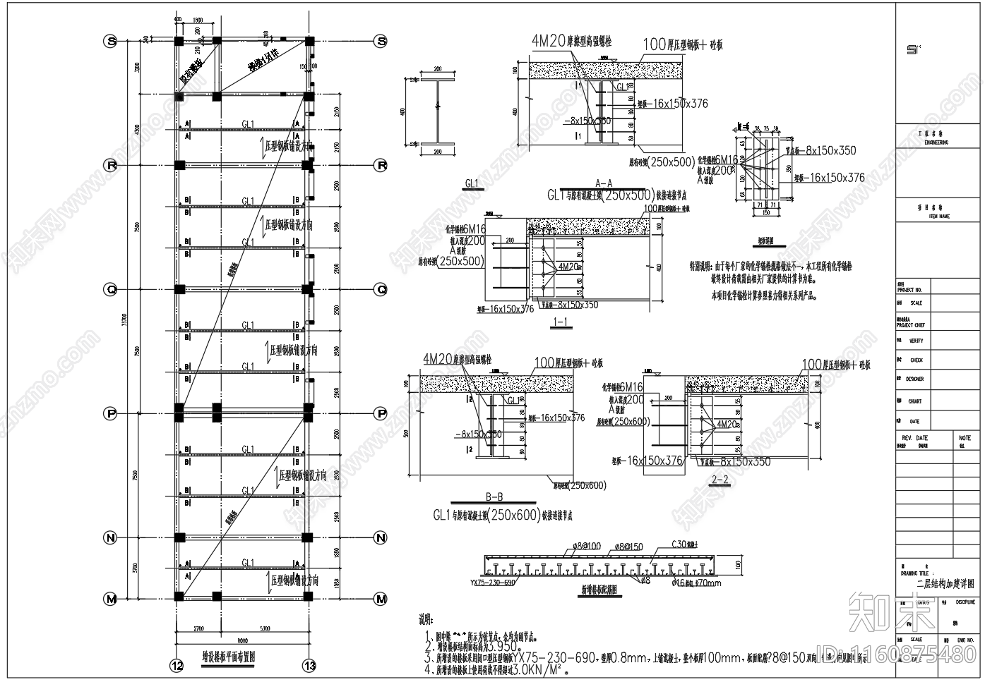
二层加建钢结构楼板节点图 施工图
1/
3
Previous
Next
二层加建钢结构楼板节点图CAD下载
ID: 1160875480
复制
上传作者
小小鱼鱼
上传时间
2024-05-18
文件大小
0.24M
设计风格:
--
CAD版本:
CAD2004
包含文件:
CAD
授权
独家
立即下载
收藏
分享
举报
相关推荐
综合
结构设计
钢结构
混凝土结构
幕墙结构
砌体结构
木结构
结构节点图
其他结构图纸