1/3


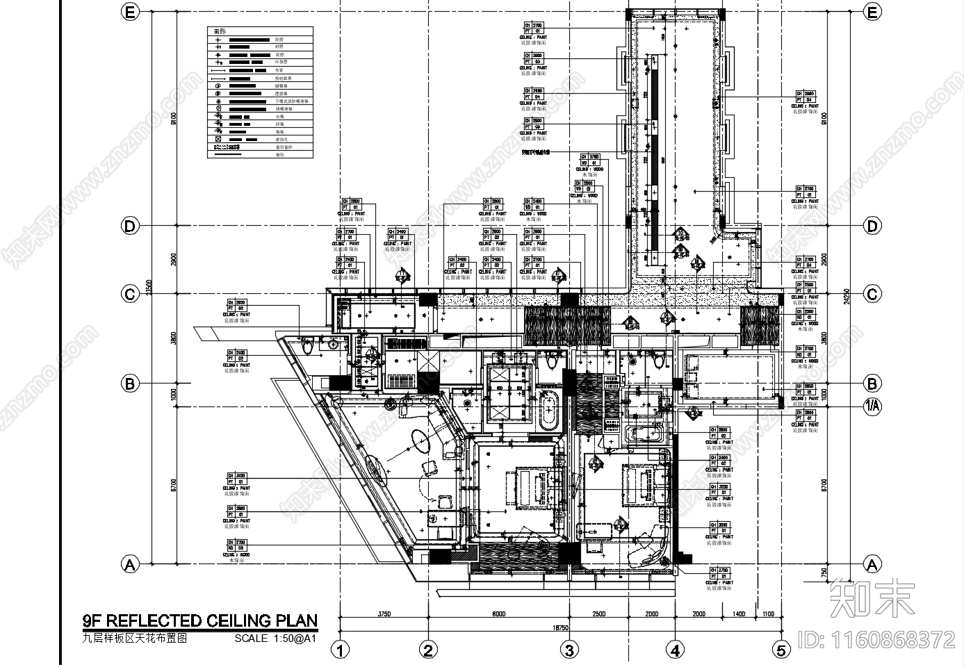
酒店样板房区电梯厅套房单标平面图CAD下载
ID: 1160868372
复制
上传作者
23502405241722
23502405241722上传时间2024-05-18
文件大小1.78M
设计风格:--
CAD版本:CAD2016
包含文件:CAD
授权独家
立即下载
收藏
分享
举报
相关推荐
综合
平面图
工装平面图
景观平面图
规划平面图
其他平面图
小区平面图


23502405241722上传时间2024-05-18
文件大小1.78M
设计风格:--
CAD版本:CAD2016
包含文件:CAD
授权独家